EasyManua.ls Logo

Daikin DZ17VSA481AA - Page 145

Daikin DZ17VSA481AA
188 pages
Print Icon
To Next Page IconTo Next Page
To Next Page IconTo Next Page
To Previous Page IconTo Previous Page
To Previous Page IconTo Previous Page
Loading...
2121
Español
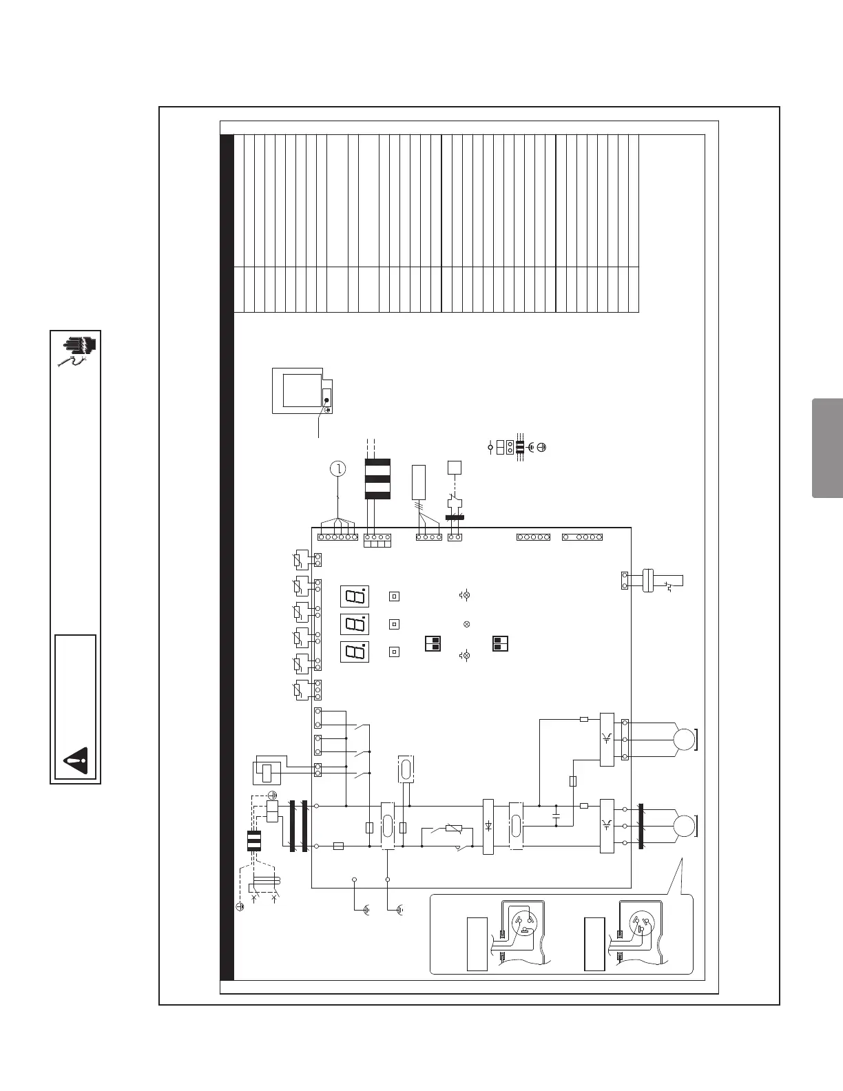
A1P
BS1~BS3
C1
DS1,DS2
F1U
F2U
F6U
K11M
K2R,K4R
K5R,K10R
M1C
M1F
PS
R2,R3
R1T
R2T
R3T
R5T
R6T
SEG1~SEG3
S1NPH/L
V2R,V3R
V1R
X1M
X52A
Z1F
H1P
HAP,H2P
S1PH
Z1C~Z4C
R4T
Y1E
DZ17VSA421・481・601AA
3D122353-1A
F3U
PFC
Q1E
R9T
X41A
Y1S
TABLERO DE CIRCUITO IMPRESO
PRESIONE EL BOTÓN INTERRUPTOR
CONDENSADOR
INTERRUPTOR DIP
FUSIBLE
FUSIBLE
FUSIBLE
FUSIBLE
LÁMPARA PILOTO (MONITOR DE SERVICIO ROJO)
CONTACTOR MAGNÉTICO
RELÉ MAGNÉTICO
MOTOR (COMPRESOR)
MOTOR (ABANICO)
CORRECCIÓN DEL FACTOR DE POTENCIA
INTERCAMBIAR SUMINISTRO DE ALIMENTACIÓN
PROTECTOR DE SOBRECARGA
RESISTENCIA
TERMISTOR (AMBIENTE)
VISUALIZACIÓN DE 7 SEGMENTOS
SENSOR DE PRESIÓN (ALTA/BAJA)
MÓDULO DE ENERGÍA IGBT
PUENTE DE DIODOS
BLOQUE DE TERMINALES
MONITOR RAM
CONECTOR (COMPARTIR DATOS)
NÚCLEO DE FERRITA
SERPENTÍN DE VALVULA DE INVERSIÓN
FILTRO DE RUIDO
LÁMPARA INTERMITENTE
(MONITOR DE SERVICIO VERDE)
TERMISTOR (DESCARGA)
TERMISTOR (LÍQUIDO)
TERMISTOR (CIRCUITO DEL SERPENTÍN)
TERMISTOR (SUCCIÓN)
TERMISTOR PTC
INTERRUPCIÓN DE PRESIÓN (ALTA)
TERMISTOR (DESCONGELAMIENTO)
SERPENTÍN DE VÁLVULA DE EXPANSIÓN ELECTRÓNICA
POSICIÓN DE ELEMENTOS EN EL CONJUNTO
DE COMPONENTES ELECTRÓNICOS.
DIAGRAMA DE CABLEADO
2.
EN LAS POSICIONES DE LOS
INTERRUPTORES SELECTORES (DS1, DS2)
INDICAN CONFIGURACIÓN DE FÁBRICA.
CONSULTE EL MANUAL DE
SERVICIO EN DETALLE.
3.
LOS SÍMBOLOS MUESTRAN COMO SIGUE
BLK: NEGRO RED: ROJO YLW: AMARILLO
GRY: GRIS GRN: VERDE
4.
USE SOLAMENTE CONDUCTORES DE COBRE.
5. CABLE CLASE 2.
6. ESTE CONECTOR ES PARA CONECTAR EL CARÁCTER
CALENTADOR DEL COMPRESOR (ACCESORIOS OPCIONALES).
7. ESTE CONECTOR SIRVE PARA CONECTAR EL CALENTADOR
DE LA BANDEJA DE DESAGÜE (ACCESORIOS OPCIONALES).
8. DURANTE LA OPERACIÓN, NO COLOQUE EL CABLE DE CORTOCIRCUITO
PARA EL DISPOSITIVO DE PROTECCIÓN (S1PH AND Q1E).
NOTA 1. :TERMINAL
:BLOQUE DE TERMINAL
:CONECTOR
:CABLEADO DE CAMPO
:TIERRA SILENCIOSA
:TIERRA DE PROTECCIÓN
UNIDAD INTERIOR
O TERMOSTATO
NOTA 8.
NOTA 5.
SUMINISTRO DE
ALIMENTACIÓN
NOTA 6.NOTA 7.
EN EL CASO DE
LA ENTRADA
DEL CABLE
LA POSICIÓN DE
LA TERMINAL DEL
COMPRESOR
LA ENTRADA
DEL CABLE
EN EL CASO DE
DZ17VSA421AA,481AA
ENCENDIDO
APAGADO
NOTA 2.
APAGADO
ENCENDIDO
NOTA 2.
1
208/230V
60Hz
L2
L1
A1P
BLK
X1M
L2L1
RED
L1 L2
F1U
GRN
E1
Z1F
PS
K10R
K11M
M1C
VU W
BLK RED YLW
Z3C
N=5
V2R
VU W
MS
3~
C1
R2
M1F
V3R
MS
3~
R3
F6U
V1R
R1T
X11A
X108A
R6T
X13A
X41A
DS1
1 2
F2U
H2P
H1P
HAP
DS2
1 2
SEG3SEG2SEG1
BS3BS2BS1
A1P
X1M
PFC
R9T
+t°
F3U
Z2C
N=6
Z1C
N=2
V
W
U
V
W
U
DZ17VSA601AA
GRN
E3
X12A
R3T R5T
R2T
R4T
X52A
5
Y1E
X21A
Q1E
NOTE8.
X33A
X25A
K5RK4R
X28A
K2R
X29A
P>
S1PH
X32A
Z4C
N=1
S1NPH/L
X17A
GRY
BLK
C
R
1
2
X851A
Y1S
ADVERTENCIA
¡ALTO VOLTAJE!
DESCONECTE TODA LA ENERGÍA ANTES DE DAR SERVICIO O INSTALAR
ESTA UNIDAD. MÚLTIPLES FUENTES DE ENERGÍA PUEDEN ESTAR PRE-
SENTES. DE NO HACERLO, PUEDE PROVOCAR DAÑO A LA PROPIEDAD,
LESIÓN PERSONAL O LA MUERTE.
El cableado está sujeto a cambios. Siempre consulte el diagrama de cableado en la unidad para el cableado más actualizado.
3,5 - 5,0 ton.: 3D122353-1A

Table of Contents

Related product manuals