EasyManua.ls Logo

Daikin DZ17VSA481AA - Diagrama de Cableado

Daikin DZ17VSA481AA
188 pages
Print Icon
To Next Page IconTo Next Page
To Next Page IconTo Next Page
To Previous Page IconTo Previous Page
To Previous Page IconTo Previous Page
Loading...
2020
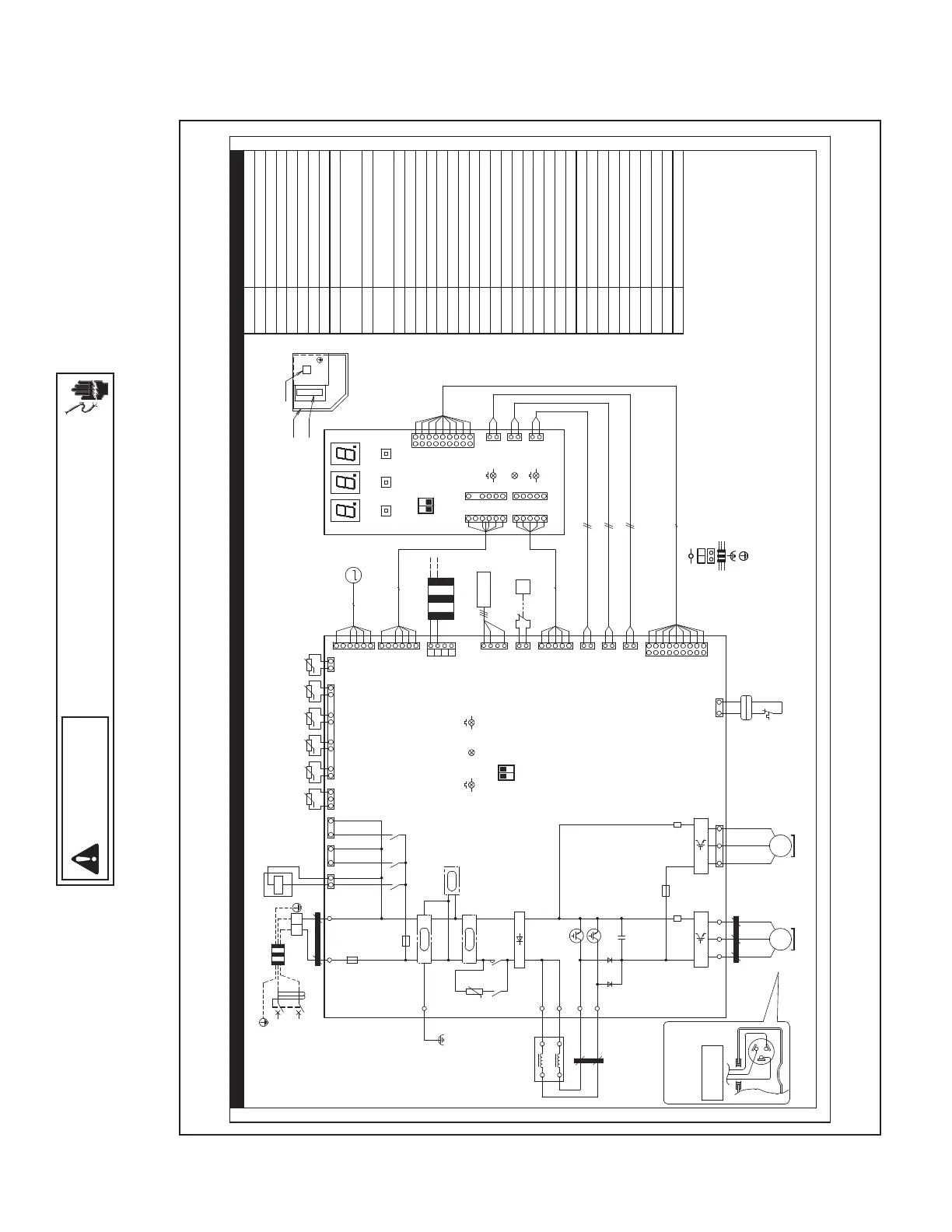
dIagrama de cableado
DZ17VSA181・241・301・361AA
3D122352-1A
R3T
R5T
R6T
SEG1~SEG3
S1NPH/L
V1D,V2D
V1T,V2T
V1R,V3R
V2R
X1M
X52A
Z1C~Z3C
Z1F,Z2F
R4T
Y1E
A1P
BS1~BS3
C1
DS1,DS2
F1U
F2U
F6U
K11M
K2R,K4R
K5R,K10R
L1R
M1C
M1F
PS
R2,R3
R1T
R2T
A2P
H1P,H1P-M
HAP,HAP-M
H2P,H2P-M
Q1E
Y1S
X41A
R7T
S1PH
TABLERO DE CIRCUITO IMPRESO
PRESIONE EL BOTÓN INTERRUPTOR (A2P)
CONDENSADOR
INTERRUPTOR DIP
FUSIBLE
FUSIBLE
FUSIBLE
LÁMPARA PILOTO (MONITOR DE SERVICIO ROJO)
TABLERO DE CIRCUITO IMPRESO (SERVICIO)
CONTACTOR MAGNÉTICO
RELÉ MAGNÉTICO
ACONDICIONADOR DE ENERGÍA
MOTOR (COMPRESOR)
MOTOR (ABANICO)
INTERCAMBIAR SUMINISTRO DE ALIMENTACIÓN
RESISTENCIA
TERMISTOR (AMBIENTE)
VISUALIZACIÓN DE 7 SEGMENTOS (A2P)
TERMISTOR PTC
SENSOR DE PRESIÓN (ALTA/BAJA)
INTERRUPCIÓN DE PRESIÓN (ALTA)
DIODOS
IGBT
MÓDULO DE ENERGÍA IGBT
PUENTE DE DIODOS
BLOQUE DE TERMINALES
MONITOR RAM
CONECTOR (COMPARTIR DATOS)
NÚCLEO DE FERRITA
SERPENTÍN DE VALVULA DE INVERSIÓN
FILTRO DE RUIDO
LÁMPARA INTERMITENTE
(MONITOR DE SERVICIO VERDE)
TERMISTOR (DESCARGA)
TERMISTOR (LÍQUIDO)
TERMISTOR (CIRCUITO DEL SERPENTÍN)
TERMISTOR (SUCCIÓN)
PROTECTOR DE SOBRECARGA
TERMISTOR (DESCONGELAMIENTO)
SERPENTÍN DE VÁLVULA DE EXPANSIÓN ELECTRÓNICA
POSICIÓN DE ELEMENTOS EN EL CONJUNTO
DE COMPONENTES ELECTRÓNICOS.
3.
LOS SÍMBOLOS MUESTRAN COMO SIGUE BLK: NEGRO RED: ROJO
WHT: BLANCO YLW: AMARILLO GRN: VERDE BRN: CAFÉ PPL: PÚRPURA/MORADO
4. USE SOLAMENTE CONDUCTORES DE COBRE.
5. CABLE CLASE 2.
6. ESTE CONECTOR ES PARA CONECTAR EL CARÁCTER
CALENTADOR DEL COMPRESOR
(ACCESORIOS OPCIONALES).
7. ESTE CONECTOR SIRVE PARA CONECTAR EL CALENTADOR
DE LA BANDEJA DE DESAGÜE
(ACCESORIOS OPCIONALES).
8. AL OPERAR, NO CORTE EL CIRCUITO PARA
PROTEGER EL DISPOSITIVO (S1PH Y Q1E).
NOTA 1. :TERMINAL
:BLOQUE DE TERMINAL
:CONECTOR
:CABLEADO DE CAMPO
:TIERRA SILENCIOSA
:
TIERRA DE PROTECCIÓN
2.
EN LAS POSICIONES DE LOS
INTERRUPTORES SELECTORES (DS1, DS2)
INDICAN CONFIGURACIÓN DE FÁBRICA.
CONSULTE EL MANUAL DE
SERVICIO EN DETALLE.
DIAGRAMA DE CABLEADO
SUMINISTRO DE
ALIMENTACIÓN
NOTA 6.
NOTA 7.
LA POSICIÓN DE
LA TERMINAL DEL
COMPRESOR
LA ENTRADA
DEL CABLE
UNIDAD INTERIOR
O TERMOSTATO
NOTA 5.
NOTA 2.
NOTA 8.
ENCENDIDO
APAGADO
NOTA 2.
APAGADO
ENCENDIDO
NOTA 8.
1
208/230V
60Hz
L2
L1
Z2C
A1P
BLK
X1M
L2L1
RED
N=4
L1 L2
F1U
GRN
E1
Z1F
Z2F
PS
K10R K11M
M1C
VU W
BLK RED YLW
Z1C
N=5
V1R
VU W
MS
3~
C1
R2
L1R
WHT
BRN
PPL
RED
HR1
HR3
HR4
HR2
V2D
V1D
V1T
V2T
Z3C
N=6
S1PH
P>
M1F
V3R
MS
3~
R3
F6U
V2R
R1T
X11A
HAP-M
H1P-M
H2P-M
X17A
X32A
X108A
X52A-M
X851A
R6T
X13A
C
R
1
2
X12A
R2T R3T R5T
X73A-M
X71A-M
X72A-M
X41A-S
X41A
X72A
X71A
X73A
H2P
H1P
HAP
DS2
1 2
X5A-A
X52A-S
X52A
A2P
SEG3SEG2SEG1
BS3BS2BS1
X5A
X41A-M
DS1
1 2
R7T
+t°
F2U
5
5
18
A2P
A1P
X1M
U
W
V
S1NPH/L
BLK
GRY
Q1E
X33A
R4T
5
Y1E
X21A
X25A
K5RK4R
X28A
K2R
X29A
Y1S
ADVERTENCIA
¡ALTO VOLTAJE!
DESCONECTE TODA LA ENERGÍA ANTES DE DAR SERVICIO O INSTALAR
ESTA UNIDAD. MÚLTIPLES FUENTES DE ENERGÍA PUEDEN ESTAR PRE-
SENTES. DE NO HACERLO, PUEDE PROVOCAR DAÑO A LA PROPIEDAD,
LESIÓN PERSONAL O LA MUERTE.
El cableado está sujeto a cambios. Siempre consulte el diagrama de cableado en la unidad para el cableado más actualizado.
1,5 - 3,0 ton.: 3D122352-1A

Table of Contents

Related product manuals