EasyManua.ls Logo

Daikin DZ17VSA481AA - Wiring Diagram and Capacitor Testing; Wiring Diagram (1.5-3.0 ton); High Voltage Warning

Daikin DZ17VSA481AA
188 pages
Print Icon
To Next Page IconTo Next Page
To Next Page IconTo Next Page
To Previous Page IconTo Previous Page
To Previous Page IconTo Previous Page
Loading...
2020
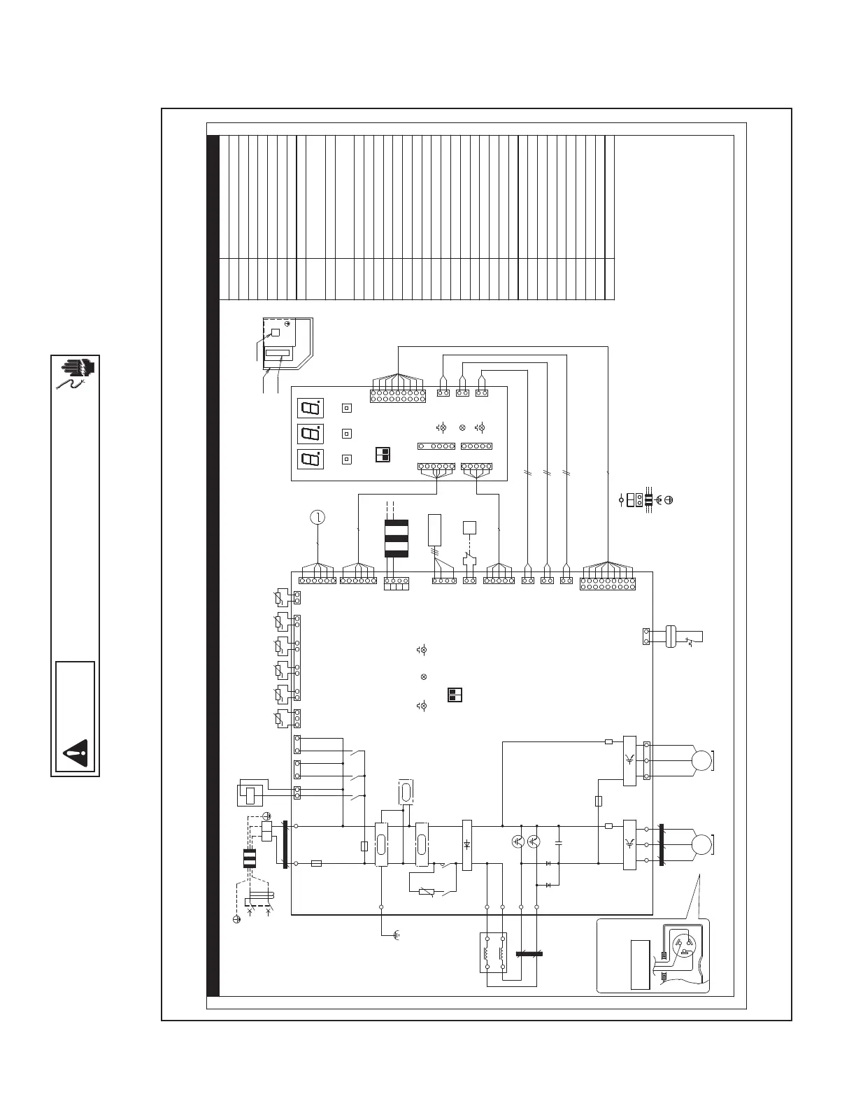
WIrIng dIagram
DZ17VSA181・241・301・361AA
3D122352-1A
R3T
R5T
R6T
SEG1~SEG3
S1NPH/L
V1D,V2D
V1T,V2T
V1R,V3R
V2R
X1M
X52A
Z1C~Z3C
Z1F,Z2F
R4T
Y1E
A1P
BS1~BS3
C1
DS1,DS2
F1U
F2U
F6U
K11M
K2R,K4R
K5R,K10R
L1R
M1C
M1F
PS
R2,R3
R1T
R2T
A2P
H1P,H1P-M
HAP,HAP-M
H2P,H2P-M
Q1E
Y1S
X41A
R7T
S1PH
PRINTED CIRCUIT BOARD
PUSH BUTTON SWITCH(A2P)
CAPACITOR
DIP SWITCH
FUSE
FUSE
FUSE
PILOT LAMP(SERVICE MONITOR-RED)
PRINTED CIRCUIT BOARD(SERVICE)
MAGNETIC CONTACTOR
MAGNETIC RELAY
POWER CONDITIONER
MOTOR (COMPRESSOR)
MOTOR (FAN)
SWITCHING POWER SUPPLY
RESISTOR
THERMISTOR (AMBIENT
)
7-SEGMENT DISPLAY(A2P)
PTC THERMISTOR
PRESSURE SENSOR (HIGH/LOW)
PRESSURE SWITCH (HIGH)
DIODE
IGBT
IGBT POWER MODULE
DIODE BRIDGE
TERMINAL BLOCK
RAM MONITOR
CONNECTOR (SHARE DATA)
FE
RRITE CORE
REVERSING VALVE COIL
NOISE FILTER
FLASHING LAMP
(SERVICE MONITOR-GREEN)
THERMISTOR (DISCHARGE)
THERMISTOR (LIQUID)
THERMISTOR (COIL CIRCUIT)
THERMISTOR (SUCTION)
OVERLOAD PROTECTOR
THERMISTOR (DEFROST)
ELECTRONIC EXPANSION VALVE COIL
ELECTRONIC COMPONENT ASSEMBLY
POSITION OF ELEMENTS.
3.
SYMBOLS SHOWS AS FOLLOWS BLK:BLACK RED:RED
WHT:WHITE YLW:YELLOW GRN:GREEN BRN:BROWN PPL:PURPLE
4. USE COPPER CONDUCTORS ONLY.
5. CLASS 2 WIRE.
6. THIS CONNECTOR IS FOR CONNECTING
THE COMPRESSOR CRANKCASE HEATER
(OPTIONAL ACCESSORIES).
7. THIS CONNECTOR IS FOR CONNECTING
THE DRAIN PAN HEATER
(OPTIONAL ACCESSORIES).
8. WHEN OPERATING,DO NOT SHO
RT CIRCUIT
FOR PROTECTION DEVICE(S1PH AND Q1E).
NOTE 1. :TERMINAL
:TERMINAL BLOCK
:CONNECTOR
:FIELD WIRING
:NOISELESS GROUND
:PROTECTIVE GROUND
2. THE POSITIONS OF THE
SELECTOR SWITCHES(DS1,DS2)
INDICATE FACTORY SETTING.
REFER TO THE SERVICE
MANUAL IN DETAIL.
WIRING DIAGRAM
POWER SUPPLY
NOTE6.
NOTE7.
THE POSITION OF
COMPRESSOR
TERMINAL
THE ENTRANCE
OF WIRE
INDOOR UNIT OR
THERMOSTAT
NOTE5.
NOTE2.
NOTE8.
ON
OFF
NOTE2.
OFF
ON
1
208/230V
60Hz
L2
L1
Z2C
A1P
BLK
X1M
L2L1
RED
N=4
L1 L2
F1U
GRN
E1
Z1F
Z2F
PS
K10R K11M
M1C
VU W
BLK RED YLW
Z1C
N=5
V1R
VU W
MS
3~
C1
R2
L1R
WHT
BRN
PPL
RED
HR1
HR3
HR4
HR2
V2D
V1D
V1T
V2T
Z3C
N=6
S1PH
P>
M1F
V3R
MS
3~
R3
F6U
V2R
R1T
X11A
HAP-M
H1P-M
H2P-M
X17A
X32A
X108A
X52A-M
X851A
R6T
X13A
C
R
1
2
X12A
R2T R3T R5T
X73A-M
X71A-M
X72A-M
X41A-S
X41A
X72A
X71A
X73A
H2P
H1P
HAP
DS2
1 2
X5A-A
X52A-S
X52A
A2P
SEG3SEG2SEG1
BS3BS2BS1
X5A
X41A-M
DS1
1 2
R7T
+t°
F2U
5
5
18
A2P
A1P
X1M
U
W
V
S1NPH/L
BLK
GRY
Q1E
NOTE8.
X33A
R4T
5
Y1E
X21A
X25A
K5RK4R
X28A
K2R
X29A
Y1S
WARNING
HIGH VOLTAGE!
DISCONNECT ALL POWER BEFORE SERVICING OR INSTALLING THIS
UNIT. MULTIPLE POWER SOURCES MAY BE PRESENT. FAILURE TO DO
SO MAY CAUSE PROPERTY DAMAGE, PERSONAL INJURY OR DEATH.
Wiring is subject to change. Always refer to the wiring diagram on the unit for the most up-to-date wiring.
1.5 - 3.0 ton: 3D122352-1A

Table of Contents

Related product manuals