EasyManua.ls Logo

Daikin DZ17VSA481AA - Wiring Diagram (3.5-5.0 ton)

Daikin DZ17VSA481AA
188 pages
Print Icon
To Next Page IconTo Next Page
To Next Page IconTo Next Page
To Previous Page IconTo Previous Page
To Previous Page IconTo Previous Page
Loading...
2121
EnglishEnglish
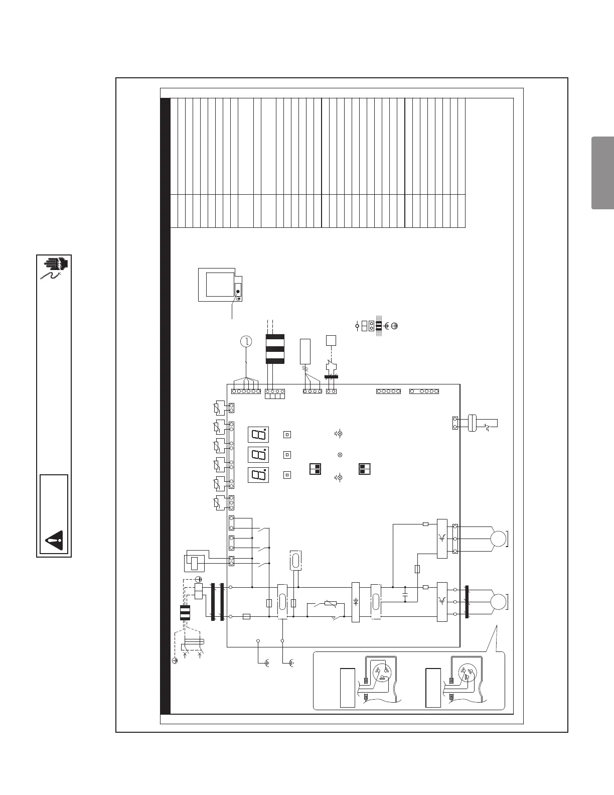
A1P
BS1~BS3
C1
DS1,DS2
F1U
F2U
F6U
K11M
K2R,K4R
K5R,K10R
M1C
M1F
PS
R2,R3
R1T
R2T
R3T
R5T
R6T
SEG1~SEG3
S1NPH/L
V2R,V3R
V1R
X1M
X52A
Z1F
H1P
HAP,H2P
S1PH
Z1C~Z4C
R4T
Y1E
DZ17VSA421・481・601AA
3D122353-1A
F3U
PFC
Q1E
R9T
X41A
Y1S
PRINTED CIRCUIT BOARD
PUSH BUTTON SWITCH
CAPACITOR
DIP SWITCH
FUSE
FUSE
FUSE
FUSE
PILOT LAMP(SERVICE MONITOR-RED)
MAGNETIC CONTACTOR
MAGNETIC RELAY
MOTOR (COMPRESSOR)
MOTOR (FAN)
POWER FACTOR CORRECTION
SWITCHING POWER SUPPLY
OVERLOAD PROTECTOR
RESISTOR
THERMISTOR (AMBIENT)
7-SEGMENT DISPLAY
PRESSURE SENSOR (HIGH/LOW)
IGBT POWER MODULE
DIODE BRIDGE
TERMINAL BLOCK
RAM MONITOR
CONNECTOR (SHARE DATA)
FERRITE CORE
REVERSING VALVE COIL
NOISE FILTER
FLASHING LAMP
(SERVICE MONITOR-GREEN)
THERMISTOR (DISCHARGE)
THERMISTOR (LIQUID)
THERMISTOR (COIL CIRCUIT)
THERMISTOR (SUCTION)
PTC THERMISTOR
PRESSURE SWITCH (HIGH)
THERMISTOR (DEFROST)
ELECTRONIC EXPANSION VALVE COIL
ELECTRONIC COMPONENT ASSEMBLY
POSITION OF ELEMENTS.
WIRING DIAGRAM
2. THE POSITIONS OF THE SELECTOR
SWITCHES(DS1,DS2) INDICATE
FACTORY SETTING.
REFER TO THE SERVICE MANUAL
IN DETAIL.
3. SYMBOLS SHOWS AS FOLLOWS
BLK:BLACK RED:RED YLW:YELLOW
GRY:GRAY GRN:GREEN
4. USE COPPER CONDUCTORS ONLY.
5. CLASS 2 WIRE.
6. THIS CONNECTOR IS FOR CONNECTING THE COMPRESSOR
CRANKCASE HEATER(OPTIONAL ACCESSORIES).
7. THIS CONNECTOR IS FOR CONNECTING THE DRAIN PAN
HEATER(OPTIONAL ACCESSORIES).
8. DURING OPERATION , DO NOT
PUT SHORT CIRCUIT
WIRE FOR PROTECTION DEVICE(
S1PH AND Q1E).
NOTE 1. :TERMINAL
:TERMINAL BLOCK
:CONNECTOR
:FIELD WIRING
:NOISELESS GROUND
:PROTECTIVE GROUND
INDOOR UNIT OR
THERMOSTAT
NOTE8.
NOTE5.
POWER SUPPLY
NOTE6. NOTE7.
IN THE CASE OF
THE ENTRANCE
OF WIRE
THE POSITION OF
COMPRESSOR
TERMINAL
THE ENTRANCE
OF WIRE
IN THE CASE OF
DZ17VSA421AA,481AA
NOTE2.
NOTE2.
ON
OFF
OFF
ON
1
208/230V
60Hz
L2
L1
A1P
BLK
X1M
L2L1
RED
L1 L2
F1U
GRN
E1
Z1F
PS
K10R
K11M
M1C
VU W
BLK RED YLW
Z3C
N=5
V2R
VU W
MS
3~
C1
R2
M1F
V3R
MS
3~
R3
F6U
V1R
R1T
X11A
X108A
R6T
X13A
X41A
DS1
1 2
F2U
H2P
H1P
HAP
DS2
1 2
SEG3SEG2SEG1
BS3BS2BS1
A1P
X1M
PFC
R9T
+t°
F3U
Z2C
N=6
Z1C
N=2
V
W
U
V
W
U
DZ17VSA601AA
GRN
E3
X12A
R3T R5T
R2T
R4T
X52A
5
Y1E
X21A
Q1E
NOTE8.
X33A
X25A
K5RK4R
X28A
K2R
X29A
P>
S1PH
X32A
Z4C
N=1
S1NPH/L
X17A
GRY
BLK
C
R
1
2
X851A
Y1S
WARNING
HIGH VOLTAGE!
DISCONNECT ALL POWER BEFORE SERVICING OR INSTALLING THIS
UNIT. MULTIPLE POWER SOURCES MAY BE PRESENT. FAILURE TO DO
SO MAY CAUSE PROPERTY DAMAGE, PERSONAL INJURY OR DEATH.
Wiring is subject to change. Always refer to the wiring diagram on the unit for the most up-to-date wiring.
3.5 - 5.0 ton: 3D122353-1A

Table of Contents

Related product manuals