EasyManua.ls Logo

Daikin DZ17VSA481AA - Capacitor Voltage Testing; Capacitor Voltage Testing Warning

Daikin DZ17VSA481AA
188 pages
Print Icon
To Next Page IconTo Next Page
To Next Page IconTo Next Page
To Previous Page IconTo Previous Page
To Previous Page IconTo Previous Page
Loading...
2323
EnglishEnglish
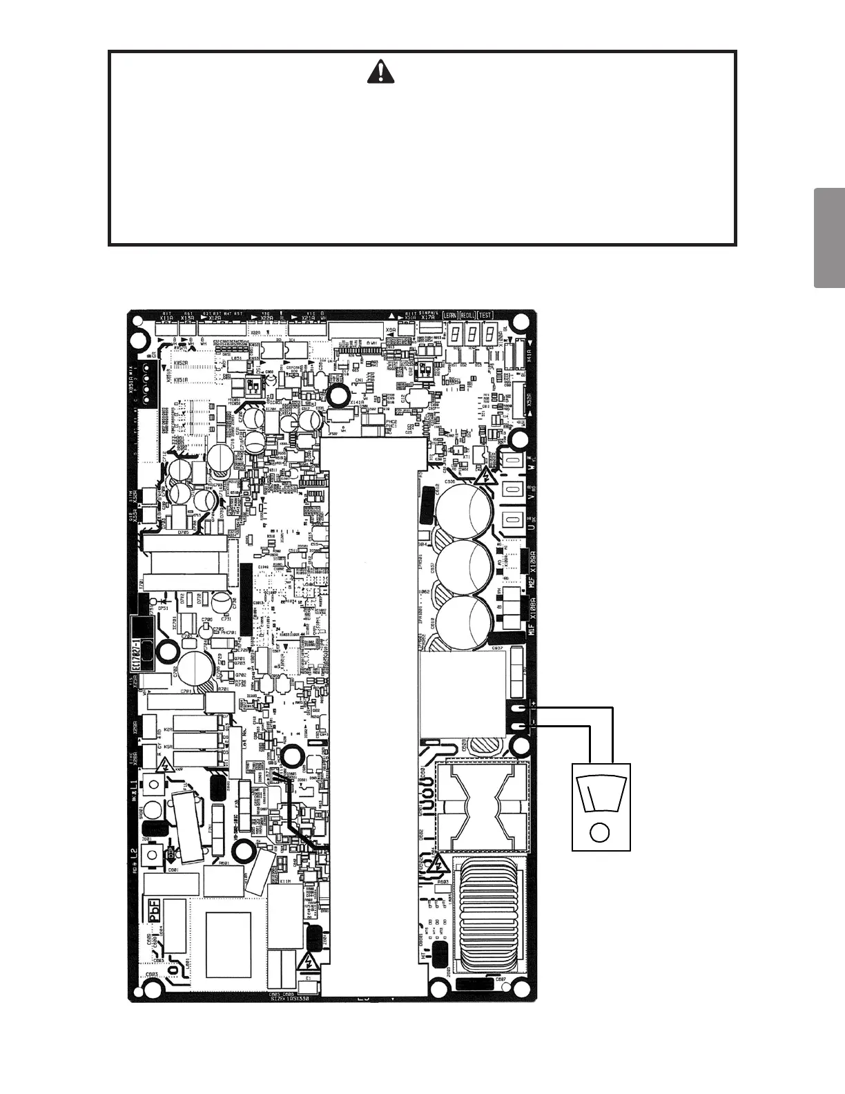
WARNING
aVoId contact wIth the charged area.
•neVer touch the charged area Before confIrmIng that the reSIdual Voltage IS 50 VoltS or leSS.
1. S
hut down the power and leaVe the control Box for 10 mInuteS.
2. m
ake Sure to touch the earth ground termInal to releaSe the StatIc electrIcIty from your Body (to preVent
faIlure of the pc Board).
3. m
eaSure the reSIdual Voltage In the SpecIfIed meaSurement poSItIon uSIng a Vom whIle payIng attentIon not to
touch the charged area.
4. I
mmedIately after meaSurIng the reSIdual Voltage, dISconnect the connectorS of the outdoor unItS fan motor.
(I
f the fan Blade rotateS By Strong wInd BlowIng agaInSt It, the capacItor wIll Be charged, cauSIng the
danger of electrIcal Shock.)
<3.5 - 5.0 ton>
MULTIMETER
(DC.VOLTAGE RANGE)
USE TESTER TO
CHECK THE VOLTAGE
DC+ “C+” AND DC- “C-” IS
50 V OR LESS.
C+
C-
Capacitor Voltage

Table of Contents

Related product manuals