EasyManua.ls Logo

Daikin DZ17VSA481AA - Page 81

Daikin DZ17VSA481AA
188 pages
Print Icon
To Next Page IconTo Next Page
To Next Page IconTo Next Page
To Previous Page IconTo Previous Page
To Previous Page IconTo Previous Page
Loading...
2121
Français
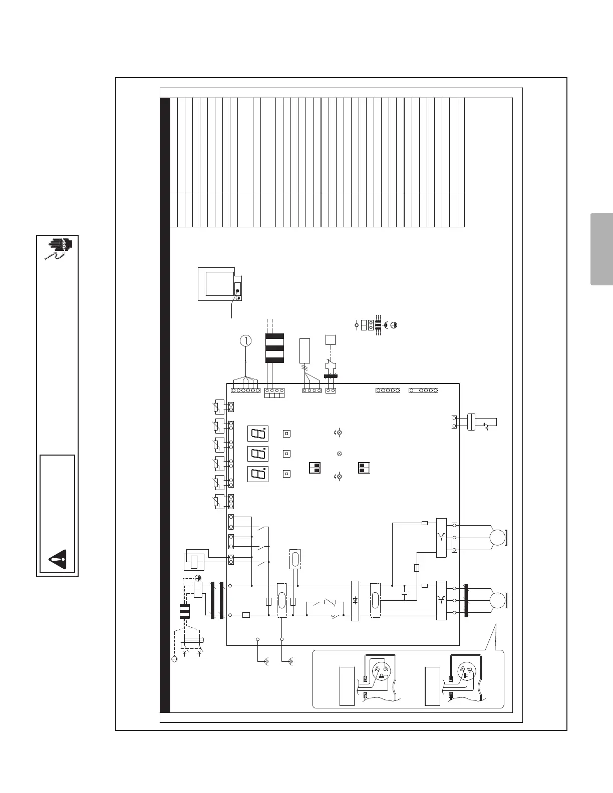
A1P
BS1~BS3
C1
DS1,DS2
F1U
F2U
F6U
K11M
K2R,K4R
K5R,K10R
M1C
M1F
PS
R2,R3
R1T
R2T
R3T
R5T
R6T
SEG1~SEG3
S1NPH/L
V2R,V3R
V1R
X1M
X52A
Z1F
H1P
HAP,H2P
S1PH
Z1C~Z4C
R4T
Y1E
DZ17VSA421・481・601AA
3D122353-1A
F3U
PFC
Q1E
R9T
X41A
Y1S
CARTE DE CIRCUIT IMPRIMÉ
INTERRUPTEUR À BOUTON POUSSOIR
CONDENSATEUR
INTERRUPTEUR DIP
FUSIBLE
FUSIBLE
FUSIBLE
FUSIBLE
LAMPE PILOTE (MONITEUR DE SERVICE-ROUGE)
CONTACTEUR MAGNÉTIQUE
RELAIS MAGNÉTIQUE
MOTEUR (COMPRESSEUR)
MOTEUR (VENTILATEUR)
CORRECTION DU FACTEUR DE PUISSANCE
ALIMENTATION DE COMMUTATION
PROTECTEUR CONTRE SURCHARGE
RÉSISTANCE
THERMISTANCE (AMBIANTE)
AFFICHAGE À 7 SEGMENTS
CAPTEUR DE PRESSION (ÉLEVÉE/BASSE)
MODULE DE PUISSANCE IGBT
PONT DE DIODE
BORNIER
MONITEUR RAM
CONNECTEUR (DONNÉES PARTAGÉES)
NOYAU DE FERRITE
BOBINE DE VANNE D’INVERSION
FILTRE À BRUIT
LAMPE CLIGNOTANTE
(MONITEUR DE SERVICE-VERT)
THERMISTANCE (DÉCHARGE)
THERMISTANCE (LIQUIDE)
THERMISTANCE (CIRCUIT BOBINE)
THERMISTANCE (SUCCION)
THERMISTANCE PTC
COMMUTATEUR DE PRESSION (ÉLEVÉE)
THERMISTANCE (DÉGIVRAGE)
BOBINE DE VANNE D’EXPANSION ÉLECTRONIQUE
POSITION D’ASSEMBLAGE DU COMPOSANT
ÉLECTRONIQUE DES ÉLÉMENTS.
DIAGRAMME DE CÂBLAGE
2.
LES POSITIONS DES COMMUTATEURS
DE SÉLECTION (DS1, DS2)
INDIQUENT LES RÉGLAGES PAR DÉFAUT.
RÉFÉREZ-VOUS AU MANUEL
D’ENTRETIEN POUR LES DÉTAILS.
3.
LES SYMBOLES MONTRENT CE QUI SUIT
BLK: NOIR RED: ROUGE YLW: JAUNE
GRY: GRIS GRN: VERT
4.
UTILISEZ DES CONDUCTEURS DE CUIVRE SEULEMENT.
5. FIL DE CLASSE 2.
6. CE CONNECTEUR EST POUR CONNECTER AU CHAUFFAGE
DU CARTER DU COMPRESSEUR (ACCESSOIRES OPTIONNELS).
7. CE CONNECTEUR EST POUR CONNECTER AU CHAUFFAGE
À PLATEAU DE DÉGIVRAGE (ACCESSOIRES OPTIONNELS).
8. LORS DU FONCTIONNEMENT, NE PAS PLACER DE FIL
DE COURT-CIRCUIT POUR L’APPAREIL DE PROTECTION (S1PH AND Q1E).
REMARQUE
1. :BORNE
:BORNIER
:CONNECTEUR
:CÂBLAGE SUR SITE
:
MISE À LA TERRE SANS BRUIT
:
MISE À LA TERRE DE PROTECTION
UNITÉ INTÉRIEURE OU
THERMOSTAT
REMARQUE 8.
REMARQUE 5.
ALIMENTATION
REMARQUE 6. REMARQUE 7.
DANS LE CAS DE
L’ENTRÉE DU
FIL
LA POSITION DU
TERMINAL DU
COMPRESSEUR
L’ENTRÉE DU
FIL
DANS LE CAS DE
DZ17VSA421AA,481AA
ARRÊT
MARCHE
REMARQUE 2.
MARCHE
REMARQUE 2.
ARRÊT
REMARQUE 8.
1
208/230V
60Hz
L2
L1
A1P
BLK
X1M
L2L1
RED
L1 L2
F1U
GRN
E1
Z1F
PS
K10R
K11M
M1C
VU W
BLK RED YLW
Z3C
N=5
V2R
VU W
MS
3~
C1
R2
M1F
V3R
MS
3~
R3
F6U
V1R
R1T
X11A
X108A
R6T
X13A
X41A
DS1
1 2
F2U
H2P
H1P
HAP
DS2
1 2
SEG3SEG2SEG1
BS3BS2BS1
A1P
X1M
PFC
R9T
+t°
F3U
Z2C
N=6
Z1C
N=2
V
W
U
V
W
U
DZ17VSA601AA
GRN
E3
X12A
R3T R5T
R2T
R4T
X52A
5
Y1E
X21A
Q1E
X33A
X25A
K5RK4R
X28A
K2R
X29A
P>
S1PH
X32A
Z4C
N=1
S1NPH/L
X17A
GRY
BLK
C
R
1
2
X851A
Y1S
AVERTISSEMENT
HAUTE TENSION!
DÉCONNECTEZ TOUTE ALIMENTATION AVANT D’ENTRETENIR OU
D’INSTALLER CETTE UNITÉ. DE MULTIPLES SOURCES D’ALIMENTATION
PEUVENT ÊTRE PRÉSENTES. NE PAS LE FAIRE PEUT PROVOQUER
DES DOMMAGES AUX BIENS, DES BLESSURES PERSONNELLES OU
LE DÉCÈS.
Le câblage est sujet à changement. Toujours vous référer au diagramme de câblage sur l’unité pour le lage le plus à jour.
3,5 - 5,0 tonnes: 3D122353-1A

Table of Contents

Related product manuals