EasyManua.ls Logo

Daikin Floor Standing Type F-Series - Wiring Diagrams; Indoor Unit

Daikin Floor Standing Type F-Series
283 pages
To Next Page IconTo Next Page
To Next Page IconTo Next Page
To Previous Page IconTo Previous Page
To Previous Page IconTo Previous Page
Loading...
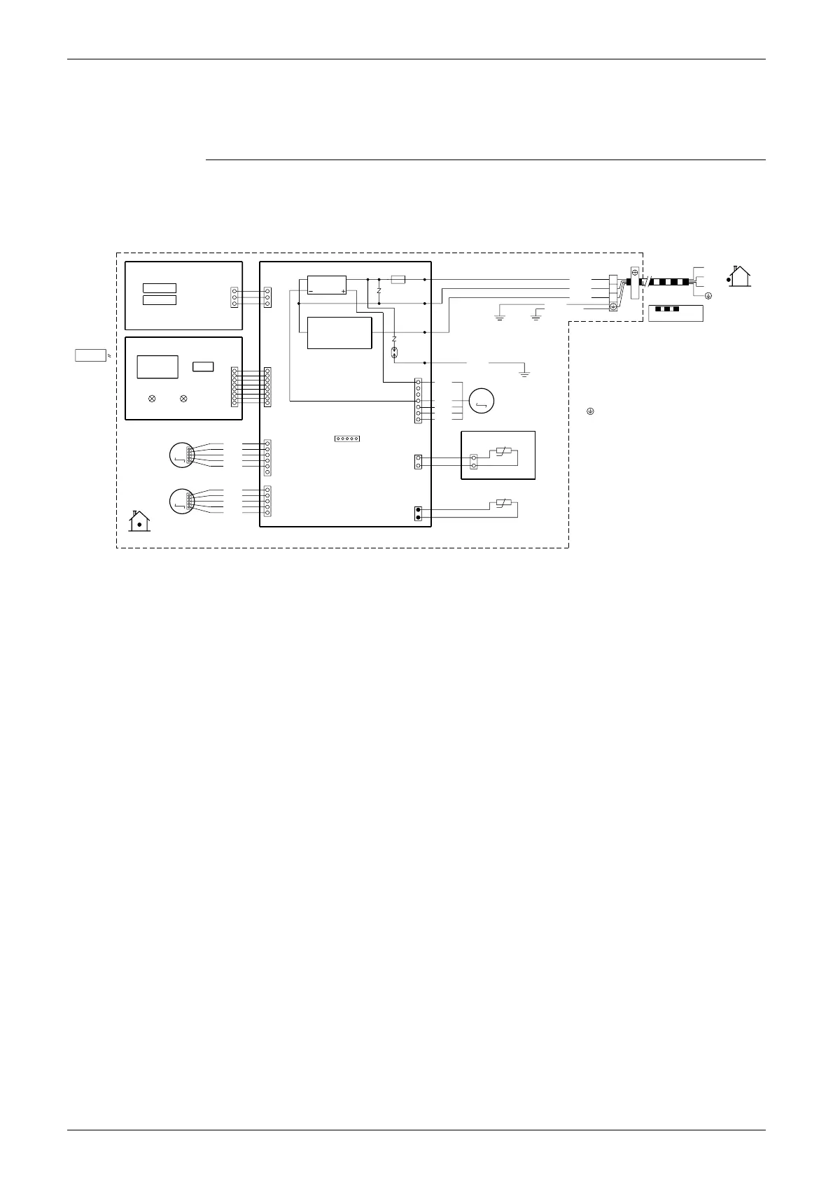
SiBE06-708_A Wiring Diagrams
Appendix 268
2. Wiring Diagrams
2.1 Indoor Unit
FVXS25/35/50FV1B
M
S1W
outdoor
FIELD WIRING.
F1U
M
M
S2W(4)
3
2
1
indoor
3
X1M
2
1
E3
S26
BLU
S4W
:
AIR OUTLET SELECTION SWITCH
S42
PCB4
S48
S41
M1S
X1M
H1P,H2P
3.15A
BRN
RED
1
RECTIFIER
RED
LED2
WHT
M1S
V2
5
H2
GRN
S4W
ORG
6
M2S
PNK
PCB3
V1
4
YLW
E4 :
EARTH TERMINAL(SHIELD PLATE)
LED1
H3
S21
S1
BLU
SA1
S32
E3
: EARTH TERMINAL(HEAT EX.)
H1
S46
HA
S27
M1F
M1F
RED
PCB1
1
F1U
E4
E3
BLU
GRN/YLW
GRN
YLW
E1
1
t°
M2S
: LOWER AIR OUTLET MOTOR
PCB2
H1P
R1T
7
ORG
PNK
BLK
R1T,R2T
S47
t°
H2P
RED
S49
S2W(4)
:
UPWARD AIR FLOW LIMIT SWITCH
R2T
S1W
WHT
ORG
: FUSE
: PILOT LAMP
: FAN MOTOR
: OPERATION SWITCH
PCB1~PCB4
: PRINTED CIRCUIT BOARD
: THERMISTOR
S1~S49
: CONNECTOR
: TERMINAL STRIP
: SWING MOTOR
: PROTECTIVE EARTH
NOTE THAT OPERATION WILL
RESTART AUTOMATICALLY IF
THE MAIN POWER SUPPLY IS
TURNED OFF AND THEN BACK
ON AGAIN.
CAUTION
~~
WIRELESS
REMOTE
CONTROLLER
SIGNAL
RECEIVER
TRANSMISSION
CIRCUIT
3D055953A

Table of Contents

Related product manuals