EasyManua.ls Logo

Danfoss FC 102 - 5.3 Wiring Schematic

Danfoss FC 102
92 pages
Print Icon
To Next Page IconTo Next Page
To Next Page IconTo Next Page
To Previous Page IconTo Previous Page
To Previous Page IconTo Previous Page
Loading...
A
A
467
18.4[ ]
0
0.0[ ]
52
2.1[ ]
0
0.0[ ]
99
3.9[ ]
145
5.7[ ]
163
6.4[ ]
0
0.0[ ]
A-A
R
S
T
130BC541.11
1
2
4
3
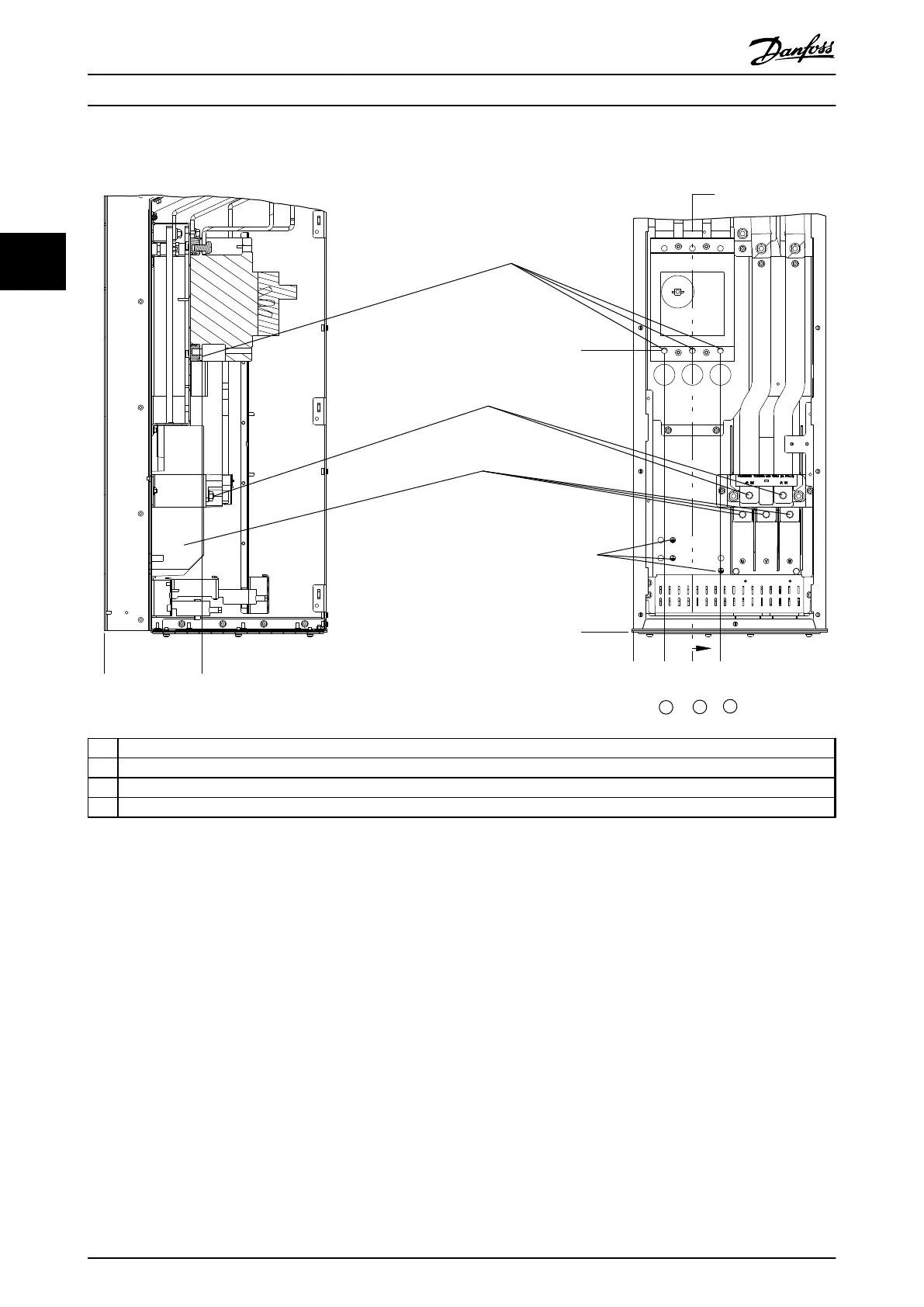
1 Mains Terminals
2 Brake Terminals
3 Motor Terminals
4 Earth/Ground Terminals
Illustration 3.17 Terminal Locations, D6h with Circuit Breaker Option
Installation Operating Instructions
24 Danfoss A/S © Rev. 06/2014 All rights reserved. MG16D302
33

Table of Contents

Other manuals for Danfoss FC 102

Related product manuals