EasyManua.ls Logo

Danfoss FC 102 - 7 Wiring Configuration Examples; 7.1 Wiring for Open-loop Speed Control

Danfoss FC 102
92 pages
Print Icon
To Next Page IconTo Next Page
To Next Page IconTo Next Page
To Previous Page IconTo Previous Page
To Previous Page IconTo Previous Page
Loading...
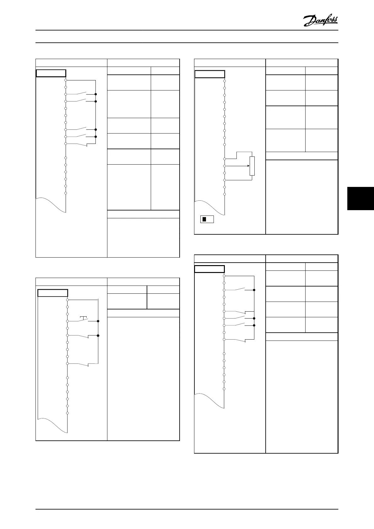
Parameters
FC
+24 V
+24 V
D IN
D IN
D IN
COM
D IN
D IN
D IN
D IN
+10 V
A IN
A IN
COM
A OUT
COM
12
13
18
19
20
27
29
32
33
37
50
53
54
55
42
39
130BB934.10
Function Setting
5-10 Terminal 18
Digital Input
[8] Start
5-11 Terminal 19
Digital Input
[10]
Reversing*
5-12 Terminal 27
Digital Input
[0] No
operation
5-14 Terminal 32
Digital Input
[16] Preset
ref bit 0
5-15 Terminal 33
Digital Input
[17] Preset
ref bit 1
3-10 Preset
Reference
Preset ref. 0
Preset ref. 1
Preset ref. 2
Preset ref. 3
25%
50%
75%
100%
*=Default Value
Notes/comments:
Table 7.7 Start/Stop with Reversing and 4 Preset Speeds
Parameters
FC
+24 V
+24 V
D IN
D IN
D IN
COM
D IN
D IN
D IN
D IN
+10
V
A IN
A IN
COM
A OUT
COM
12
13
18
19
20
27
29
32
33
37
50
53
54
55
42
39
130BB928.10
Function Setting
5-11 Terminal 19
Digital Input
[1] Reset
*=Default Value
Notes/comments:
Table 7.8 External Alarm Reset
Parameters
FC
+24 V
+24 V
D IN
D IN
D IN
COM
D IN
D IN
D IN
D IN
+10
V
A IN
A IN
COM
A OUT
COM
12
13
18
19
20
27
29
32
33
37
50
53
54
55
42
39
A53
U - I
5kΩ
130BB683.10
Function Setting
6-10 Terminal 53
Low Voltage
0.07 V*
6-11 Terminal 53
High Voltage
10 V*
6-14 Terminal 53
Low Ref./Feedb.
Value
0 RPM
6-15 Terminal 53
High Ref./Feedb.
Value
1,500 RPM
*=Default Value
Notes/comments:
Table 7.9 Speed Reference (using a Manual Potentiometer)
Parameters
FC
+24 V
+24 V
D IN
D IN
D IN
COM
D IN
D IN
D IN
D IN
+10 V
A IN
A IN
COM
A OUT
COM
12
13
18
19
20
27
29
32
33
37
50
53
54
55
42
39
130BB804.10
Function Setting
5-10 Terminal 18
Digital Input
[8] Start*
5-12 Terminal 27
Digital Input
[19] Freeze
Reference
5-13 Terminal 29
Digital Input
[21] Speed
Up
5-14 Terminal 32
Digital Input
[22] Speed
Down
*=Default Value
Notes/comments:
Table 7.10 Speed Up/Down
Application Examples
Operating Instructions
MG16D302 Danfoss A/S © Rev. 06/2014 All rights reserved. 55
7 7

Table of Contents

Other manuals for Danfoss FC 102

Related product manuals