EasyManua.ls Logo

Dexter Laundry WCAD Series - Page 37

Dexter Laundry WCAD Series
98 pages
To Next Page IconTo Next Page
To Next Page IconTo Next Page
To Previous Page IconTo Previous Page
To Previous Page IconTo Previous Page
Loading...
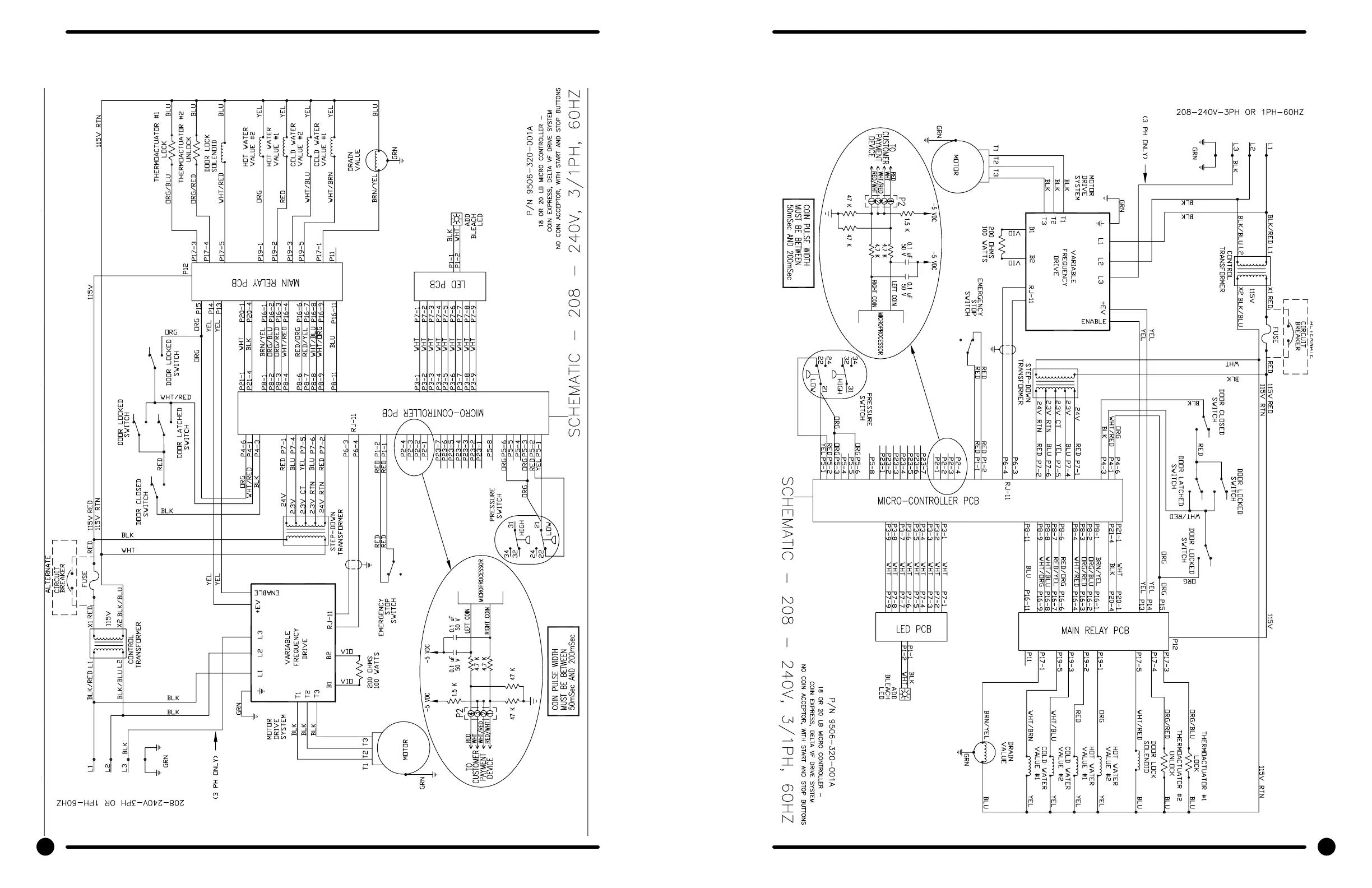
CN (No Coin Acceptor) 20Lb.
Non-Express: 208-240 Volt Wiring Diagram
CN (No Coin Acceptor) 20Lb. Express:
208-240 Wiring Schematic
72 73
Part # 8533-072-001 3/22 Part # 8533-072-001 3/22
Machine
Mounting
Installation
& Operation
Programming
Trouble-
shooting
Machine
Service
Electrical
Wiring
Parts
Data
Coin
Handling
50Hz
Parts
Maintenance
Service Elec.
Compnents

Table of Contents

Other manuals for Dexter Laundry WCAD Series

Related product manuals