EasyManua.ls Logo

Dexter Laundry WCAD Series - Page 86

Dexter Laundry WCAD Series
98 pages
To Next Page IconTo Next Page
To Next Page IconTo Next Page
To Previous Page IconTo Previous Page
To Previous Page IconTo Previous Page
Loading...
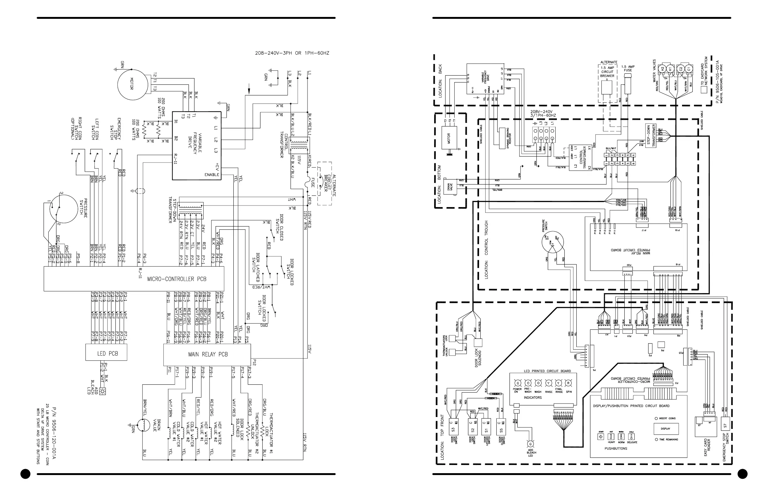
IEC 20Lb. Non-Express:
208-240 Volt Wiring Schematic
IEC 20Lb. Non-Express:
208-240 Volt Wiring Diagram
170 171
Part # 8533-072-001 3/22 Part # 8533-072-001 3/22
Machine
Mounting
Installation
& Operation
Programming
Trouble-
shooting
Machine
Service
Electrical
Wiring
Parts
Data
Coin
Handling
50Hz
Parts
Maintenance
Service Elec.
Compnents

Table of Contents

Other manuals for Dexter Laundry WCAD Series

Related product manuals