EasyManua.ls Logo

DKS 6002 - 2.6 Secondary Entrapment Protection Device Wiring

DKS 6002
41 pages
Print Icon
To Next Page IconTo Next Page
To Next Page IconTo Next Page
To Previous Page IconTo Previous Page
To Previous Page IconTo Previous Page
Loading...
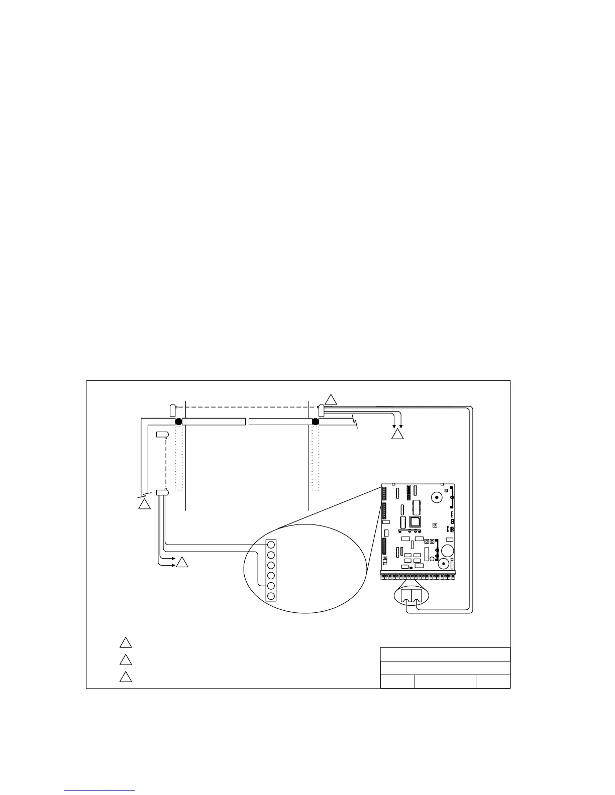
2.6 Secondary Entrapment Protection Device Wiring
This swing gate operator uses an inherent entrapment sensing system (Type A) and has provisions
for connection of secondary entrapment protection devices. External entrapment protection
devices are required to insure a safe gate operating system. Secondary entrapment protection
may be provided by a combination of non-contact (Type B1) sensors.
Disconnect power to the gate operator before installing the non-contact sensors.
See Figure 17 for suggested placement of sensors. (Diagram is for illustration purposes only.
Actual placement of sensors is dependent on the installation requirements).
One or more non-contact sensors should be located where the risk of entrapment or
obstruction exist such as the perimeter reachable by a moving gate or barrier.
Use only U.L. listed (or equivalent) non-contact sensors.
Connect the non-contact sensors as shown below. Inputs from the photo-beam to the circuit
board are Normally Open (N.O.). Diagram does not illustrate power wiring to the photo-
beams. Refer to the photo-beam installation instructions for proper connection of photo-
beam power.
Photo-beam input to MAIN TERMINALS 8 and 9 will REVERSE travel of gate when activated
during the CLOSE CYCLE ONLY provided that SW1, switch 5 is OFF.
Photo-beam input to SECONDARY ENTRAPMENT PROTECTION DEVICE TERMIANLS will
STOP gate travel in the OPENING cycle. Gate will resume normal operation when photo-
beam is no longer activated.
Fence
Gate Gate
8 9
1 Open Cycle Photocell
2 Close Cycle Photocell
3 Not Used
4 Not Used
5 Common
6 Common
DOORKING, INC., INGLEWOOD, CA 90301
Title:
Date: Rev.Dwg. No.
Secondary Entrapment Protection Terminal Wiring
A
7/03 M6001-065-5
1
2
Standard reverse beam prevents gate from
hitting obstructions during the close cycle.
2
Open protect beam protects area between
gate and adjacent fence during open cycle.
1
3
Photo-beam power. Separate power
transformer required.
3
3
Figure 16
Page 22

Other manuals for DKS 6002

Related product manuals