EasyManua.ls Logo

DMP Electronics XT30 - XT30;XT50 Wiring Diagram

DMP Electronics XT30
30 pages
Print Icon
To Next Page IconTo Next Page
To Next Page IconTo Next Page
To Previous Page IconTo Previous Page
To Previous Page IconTo Previous Page
Loading...
Digital Monitoring Products XT30/XT50 Installation Guide
4
SYSTEM COMPONENTS
1144-D Two-button Panic
Transmitter
Key Fob transmitter designed to clip onto a key ring or lanyard that provides two-button
panic operation.
1144-4 (Four-Button)*
1144-2 (Two-Button)*
1144-1 (One-Button)*
Key Fob transmitters designed to clip onto a key ring or lanyard.
1148 Personal Pendant* One button one-button, wireless emergency transmitter designed to be worn as a wristband
or on a break-away lanyard.
1154 4-Zone Takeover Module Converts up to four existing normally closed, hardwired zones into wireless zones.
1164/1164NS Wireless
Commercial Smoke
Battery powered, wireless, low prole, photoelectric smoke detector. The 1164 also oers a
synchronized sounder.
1183-135F Heat Detector Fixed temperature heat detector
1183-135R Heat Detector Fixed temperature and rate-of-rise heat detector
1184 Carbon Monoxide Detector Carbon Monoxide Detector.
Keypads
LCD keypads Allows you to control the panel from various remote locations. Connect up to eight keypads.
Model 7060, 7063, 7070, 7073, 7160, 7163, 7170, 7173 Thinline™ keypads, 7060A, 7063A,
7070A, 7073A Aqualite™ keypads, 7360, 7363 Thinline Icon
Series keypads, 7872 and 7873
Graphic Touchscreen keypads to the keypad bus using terminals 7, 8, 9, and 10.
9000 Series Wireless LCD keypads Allows you to control the panel from various remote locations. Connect up to four keypads.
9060, 9063 Wireless Keypads.
9800 Series Wireless
Graphic
Touchscreen keypads
Allows you to control the panel from various remote locations. Connect up to four keypads.
9862 Wireless Keypads.
* These devices have not been investigated and shall not be used in listed installations
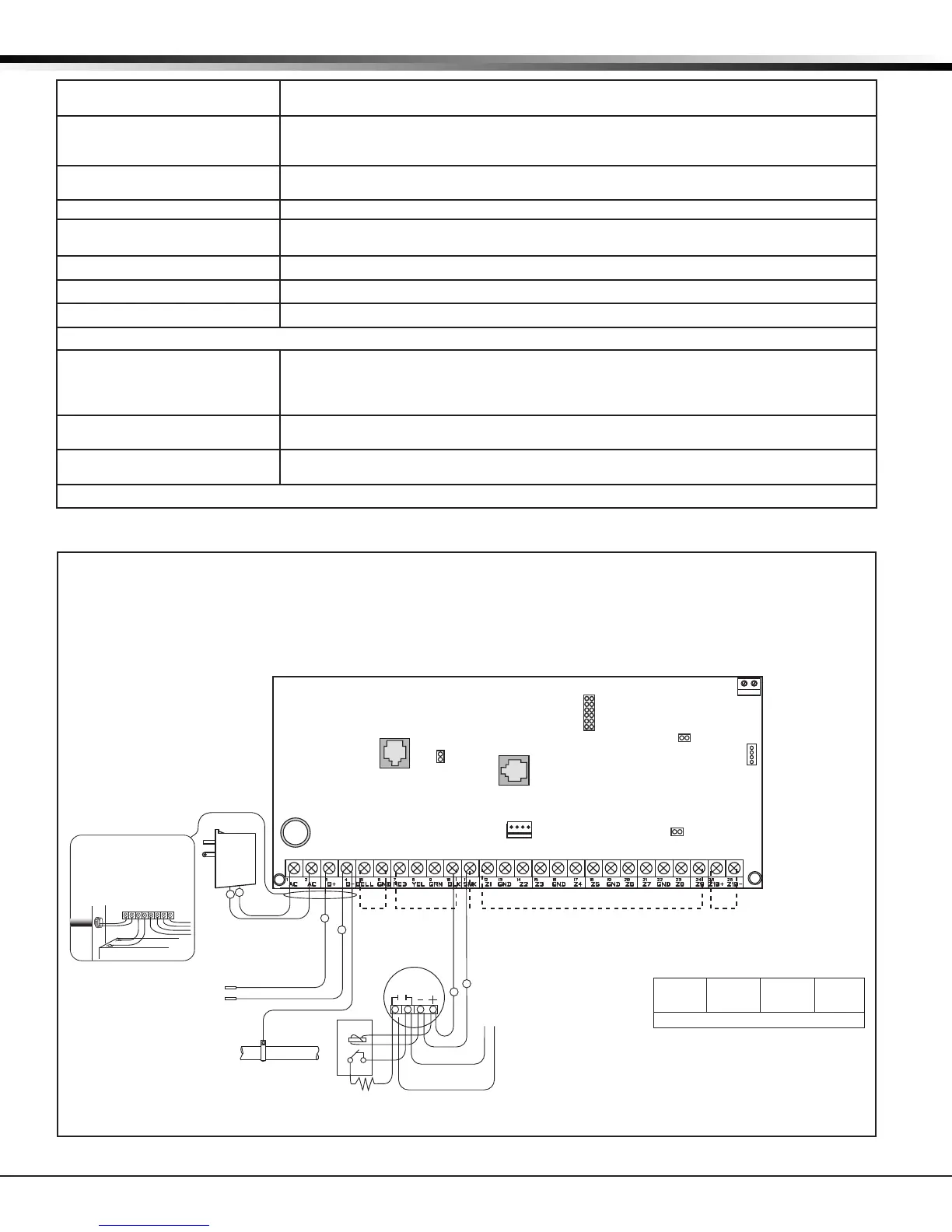
3.4 XT30/XT50 Wiring Diagram
16 to 18
gauge wire
Maximum AC
Wire distance –
16 gauge wire: 70 feet
18 gauge wire: 40 feet
RED
BLACK
Earth Ground
s
s
s
s
USE MARKING
Commercial Central Station; Household Fire and
Burglar Warning System Control Unit (DACT,
PSDN: IP or Cellular)
NFPA 72
This equipment should be installed in accordance with Chapter 11
of the National Fire Alarm Code, ANSI/NFPA 72-2002, (National
Fire Protection Association, Batterymarch Park, Quincy, MA
02269). Printed information describing proper installation,
operation, testing, maintenance, evacuation planning, and repair
service is to be provided with this equipment. Warning: Owner’s
instruction notice, not to be removed by anyone except occupant.
HOUSEHOLD FIRE WIRING
Recognized limited energy cable must be
used for connection of all initiating,
indicating, and supplementary devices.
POWER LIMITED
All circuits on the Model XT30/XT50 comply
with the requirements for inherent power
limitation and are Class 2.
TYPES OF SERVICE
Suitable for DACT Central Station.
Suitable for Household Fire and
Household Burglary. Test weekly.
SIA CP-01-2010 minimum system is
XT30 or XT50, local Bell, and off
premise DACT communication to an
SCS-1R receiver plus ANSI/SIA
CP-01-2010 classified compatible DMP
keypads as indicated in the installation
guide.
Listed Resistors
1.0k Ohm - DMP Model 311
3.3k Ohm - DMP Model 309
Plug into
120VAC
60 Hz
outlet not
controlled
by switch.
Zone 10 compatibility
identifier: A
Maximum operating
range:
8.8VDC - 14.2VDC.
DMP Transformers
Model 321 – 16.5VAC 40 VA
Class 2 plug-in.
Model 320 – 16.5VAC 40 VA
Class 2 wire-in.
Verification
Zone
10
Control Unit
Delay
13.6 sec.
Smoke
Model
______
Detector
Delay
____sec.
Heat detectors, manual pull stations, or any
other shorting device. Unlimited number of
units.
1K Ohm EOL
on each zone
3.3K Ohm EOLSwitched
Voltage
Output
Zone 10Keypad
Bus
Smoke
Zones 1 to 9
Bell
Secondary Power Supply
1.2 Amps maximum charging current. Use only
12VDC rechargeable batteries. Replace every 3
to 5 years.
Minimum voltage on
Auxiliary output to
process Sensor trips
is 10.4VDC.
For Wireless Devices, Control Unit delay is 0 (zero).
Bell — 10.2 - 13.9VDC
Total current: 1.5 Amps max.
w/ 40 VA.
AUX (RED) — Up to 500mA
auxiliary current at
10.2VDC -
13.9
VDC from Terminal 7.
Up to 325mA auxiliary current
at 10.2VDC - 13.9VDC from
Terminal 7 when using (2)
Model 364 1.3Ah Batteries.
Smoke Output: — 100mA at
10.2 - 13.9VDC Terminal 11.
For listed applications the maximum current from a combination of bell
output and auxillary output is 1.6 amps.
AC Wiring must be in conduit and exit
out the left side of the enclosure.
Wiring on terminals 5 through 26
must exit right and maintain a 1/4"
separation from the AC and battery
positive wiring.
J3
Phone
Line
Outputs
J11
J1
Ethernet
J16
Reset
J20
Wireless
Antenna
connection
J7
RJ Supervision
1
2
3
4
J18
Load
RED
Programming
J8
XT30/XT50 Series Panel
Programmer Header J8
Use DMP Model 330 Harness
Terminals 5-20 are Power Limited.
J24 Celllular
header
connection
Smoke
Detector
1k Ohm
s
s
To Keypad
or Zone
Expander
Figure 1: System Wiring Diagram

Table of Contents

Other manuals for DMP Electronics XT30

Related product manuals