EasyManua.ls Logo

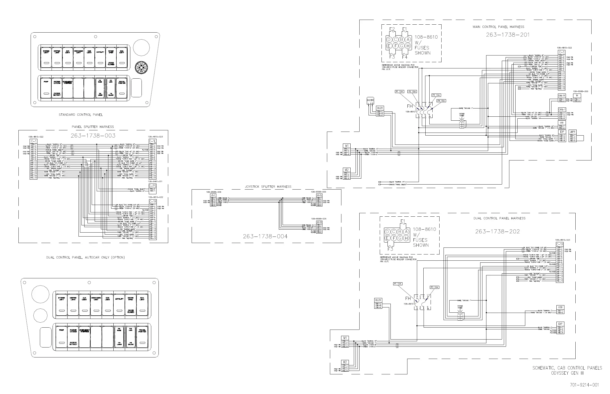
Dover HEIL Half/Pack Factor AFL - Cab Control Panels - 701-9214-001

Dover HEIL Half/Pack Factor AFL
257 pages
Print Icon
To Next Page IconTo Next Page
To Next Page IconTo Next Page
To Previous Page IconTo Previous Page
To Previous Page IconTo Previous Page
Loading...
5/25/16

Table of Contents