EasyManua.ls Logo

DriSteem XT-10 - Drip Tee Installation

DriSteem XT-10
72 pages
Print Icon
To Next Page IconTo Next Page
To Next Page IconTo Next Page
To Previous Page IconTo Previous Page
To Previous Page IconTo Previous Page
Loading...
Page 24 • DRI-STEEM XT Series Electrode Steam Humidifier Installation, Operation, and Maintenance Manual
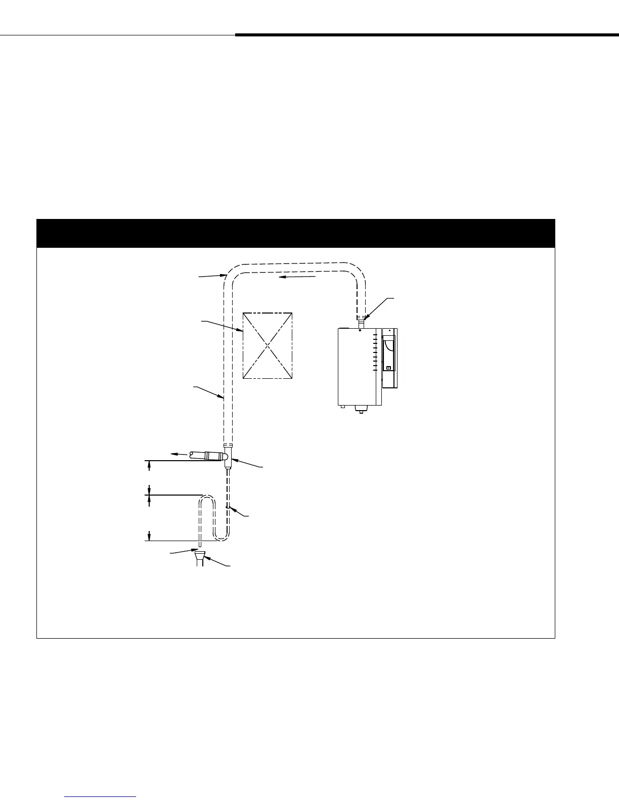
Dispersion: Drip tee installation
Install a drip tee as shown below when the humidifier is mounted
higher than the dispersion assembly, when interconnecting hose or
piping needs to go over an obstruction, or when interconnecting
piping runs are long.
IMPORTANT: Vapor hose must be supported to prevent sagging or
low spots.
Figure 24-1:
Drip tee installation (piping over an obstruction)
Notes:
Locate air gap only in spaces with adequate temperature and air movement to absorb flash steam; otherwise, condensation may form on nearby surfaces. Refer
to governing codes for drain pipe size and maximum discharge water temperature.
Support vapor hose so there are no sags or low spots
Dashed lines indicate provided by installer
OM-7364
Adapter
Open drain required. See first note below.
¾" (DN20)
Tubing or pipe drip tee, by installer.
DRI-STEEM part numbers for 304 stainless steel in-line tees:
1½" diameter (DN40): No. 162710
1" (25 mm) air gap
8" (200 mm) minimum
6" (150 mm) minimum
To dispersion assembly
Insulate tubing and hard pipe
to reduce steam loss
90° long sweep or
two 45° elbows
Obstruction
Pitch
XT_IOM_Jan_2008.pdf 26 11/19/2009 10:13:38 AM

Related product manuals