EasyManua.ls Logo

Electron E-ROBOT+3 Series - Page 29

Default Icon
68 pages
Print Icon
To Next Page IconTo Next Page
To Next Page IconTo Next Page
To Previous Page IconTo Previous Page
To Previous Page IconTo Previous Page
Loading...
29
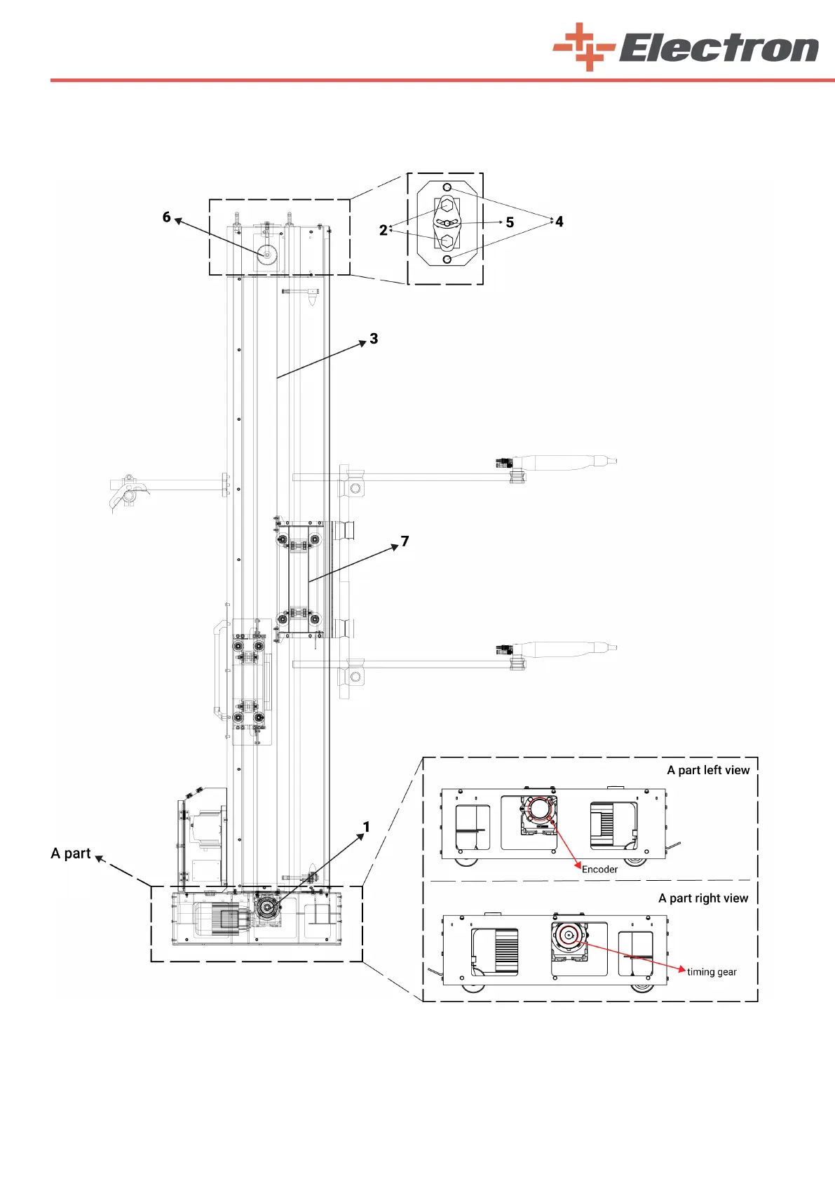
**The installation takes place exactly in the reverse order!
E-ROBOT+3 Z

Table of Contents