EasyManua.ls Logo

ESAB PCM-875A - Power Console Electrical Drawings

ESAB PCM-875A
136 pages
Print Icon
To Next Page IconTo Next Page
To Next Page IconTo Next Page
To Previous Page IconTo Previous Page
To Previous Page IconTo Previous Page
Loading...
SECTION 6 PCM-875A Plasmarc System Troubleshooting
6-18
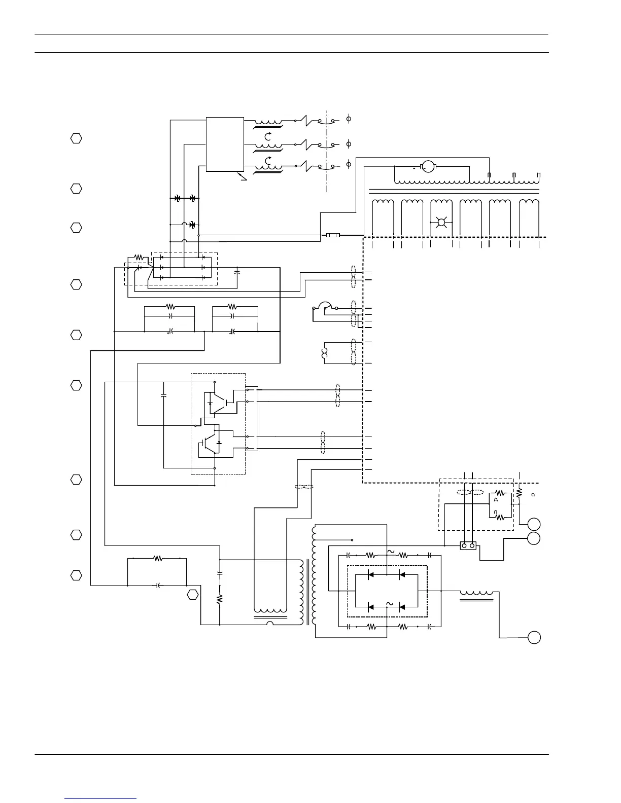
6.6 400V Power Console Electrical Drawings
6.6.1 400V Console Schematic Part 1
L
1
(PCB4)
3
1
R
9
9
2
10
39K,2W
40UF,400VDC
C
4
1
4
3
8
7
6
E2
(-)
1
800VDC
2 UF
C
1
6
C8
R
6
R5C7
T
4
R
7
10 OHM,50W
3
1
1
1KV
0.022UF
C
1
0
2
H2
2
X1
T
1
H1
20,25W
20,25W
(+)
R3
20,25W.01UF,1KV
12
C5
1 2
1
R4
1
20,25W.01UF,1KV
2
1 1
3
D1
2
1
(-)
.01UF,1KV
2 12
C6
.01UF,1KV
2 2 1
H2
S
H
2
(+)
C1
3
Q
1
X2
X3
G1
4
V
E1
3
V
G2
C2E1
2
2
1
E2
VV
P
C
B
2
P/N-38099
P1-7
P6-11
P6-10
T
B
3
V
P1-8
(+)
4
RED
VV
V
V
V
P4-5
P4-4
V V
P3-5
P3-4
F
N
1
4
5
(+)
C
2
1800uf
450VDC
C
1
5
R
1
5
10K,25W
1 UF
630VDC
(+)
2
3
R
1
0
R2
G
1
10,50W
T
R
I
B
R
S
M
O
V
510V
2
510V 510V
2
1
M
O
V
3
M
O
V
1
F
1
3A,600VAC
T
S
1
1800uf
C
1
450VDC
C
3
R
2
10K,25W
630VDC
1 UF
(-)
2
1
1
2
3
10K,2W
R
1
(-)
0.22UF,1KV
C
1
9
50/60 HZ
3 PH
400 VAC
2
P6-5
VV V
P1-2
P1-1
MAX
VV V
P6-6
P6-12
P6-13
VV
P2-7
P2-8
1
L
2
LOAD
LINE
P/N-952253
EMC FILTER
A
AH2
A
B
C
BH2
B
CH2
C
AH1
6
C
B
1
BH1
5
CH1
4
T
2
1
1
2
2
33
2 1
H1
P5-9
8 ,300W
(-)
R12
8 ,300W
BLK
R11
100K
R16
2
1
2W
V
(CONTROL BOARD)
P/N-38109
P
C
B
1
P2-1
V
P2-4
V
24V
X2
X1
V
P1-3
P1-4
V
18V
X3
X4
P2-11
P2-14
V V
115V
1
2
X11
X12
V
P1-6
P1-5
V
12V
X5
X6
X8
P1-9
V
18V
X7
P1-10
V
P5-3
V
12V
X9
X10
P5-3
V
0H1
M
1
H2
230V
H3
400V
H4
460V
1
2
3

Table of Contents

Related product manuals