EasyManua.ls Logo

Everest VX - Machine and Site Requirements and Considerations; Site Requirements and Physical Layout

Everest VX
71 pages
Print Icon
To Next Page IconTo Next Page
To Next Page IconTo Next Page
To Previous Page IconTo Previous Page
To Previous Page IconTo Previous Page
Loading...
MACHINE AND SITE REQUIREMENTS AND
CONSIDERATIONS
The sides and rear machine panels are square to the frame so you can use the plumb of the
sides and rear for level. Do not use the front doors as your baseline surface for leveling the
machine.
Physical Requirements
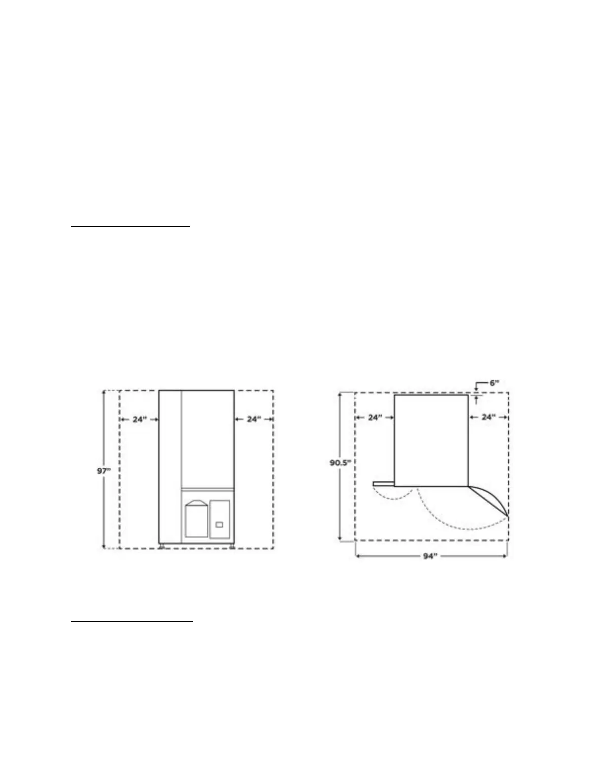
Sizes and Clearance - The site requires a minimum amount of total space as detailed in Figure
11 and Figure 12 below.
To allow for proper airflow and ventilation a minimum of 24 inches is required on the left
and right sides of the machine.
To allow for electrical and water connections a minimum of six (6) inches is required on
the back of the machine.
To follow NAMA (National Association of Automatic Merchandising) regulations there
needs to be six (6) inches of clearance under the machine.
Figure 11: Machine height and side clearance Figure 12: Machine width and depth
Foundation and Access
The site requires a surface that is capable of supporting 2,500 lb spread over (4) 2-inch
diameter legs. The maximum cross slope of the foundation is one inch per foot. In areas where
there is a possibility of violent weather, the machine foundation requires mechanically clamping
the fork truck guides to the foundation. The site needs to have access for a fork truck or material
20
Vb000122015

Table of Contents