EasyManua.ls Logo

Faraday MPC-1500 Plus - Page 110

Faraday MPC-1500 Plus
127 pages
Print Icon
To Next Page IconTo Next Page
To Next Page IconTo Next Page
To Previous Page IconTo Previous Page
To Previous Page IconTo Previous Page
Loading...
FARADAY, LLC
447138 ISSUE I REV. A PAGE 1 OF 2
INSTALLATION INSTRUCTIONS AND WIRING FOR
FIRE ALARM ACCESSORY ENCLOSURE
CAT. NO. FAE-21 P/N 401403 AND
SEMI-FLUSH TRIM
CAT. NO. SFT-21 P/N 401404
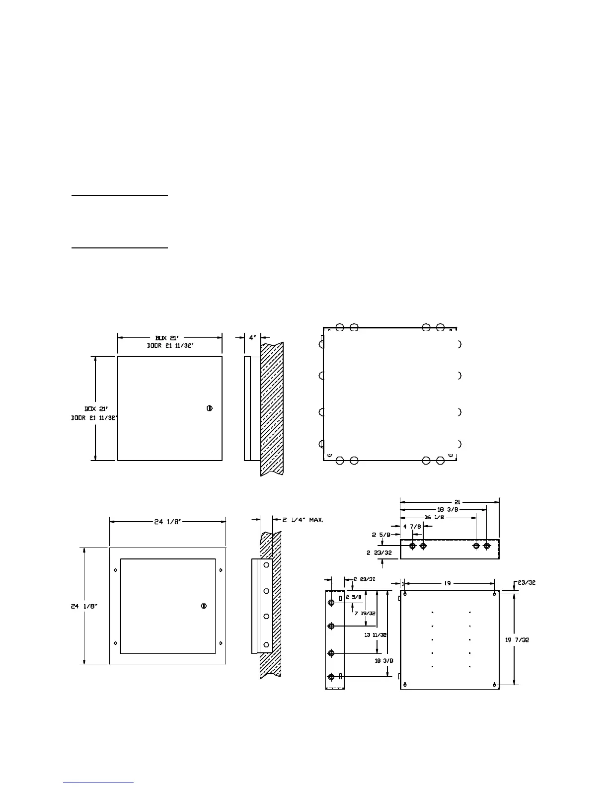
The 401403 Fire Alarm Accessory Enclosure is an optional accessory for the 12100, 12120, 12500, 12530
or 12540 Fire Alarm System Control Unit. The 401403 provides an enclosure for 12507 and 12508 Serial
Relay Units and 12509 and 12510 Serial Annunciator Units. The 401403 enclosure provides mounting of up
to two 12507 units and two 12508 extenders or two 12509 units and five 12510 extenders.
401403 PARTS SUPPLIED
1 447160 Back Box
1 413754 Door Assembly
1 447138 Instruction Sheet
401404 PARTS SUPPLIED
1 447166 Semi-Flush Trim
4 940454 Wood Screw, #10x3/4”
401403 SURFACE MOUNTING
401403 SEMI-FLUSH MOUNTING
WITH 401404 SEMI-FLUSH TRIM
Step 1.) Installation is to be done by qualified personnel
who have thoroughly read and understood this
instruction sheet.
Step 2.) Mount enclosure as required.
Step 3.) Attach conduit and run wires as required.
Step 4.) Mount PCB Tracks as required.
Note: See the installation instructions provided with
relay or annunciator units for installation and
wiring.
KNOCK-OUT LOCATION
Note: Use knock-
outs A, E, K or M
for power-
limited
connections to
the fire alarm
control unit.
401403 DIMENSIONS
A B C D
E F
G H
I J
K L
M N O P

Table of Contents