EasyManua.ls Logo

Faraday MPC-1500 Plus - Wiring Separation

Faraday MPC-1500 Plus
127 pages
Print Icon
To Next Page IconTo Next Page
To Next Page IconTo Next Page
To Previous Page IconTo Previous Page
To Previous Page IconTo Previous Page
Loading...
12530/12540 OWNER'S MANUAL
P/N 447203 Issue I V-2
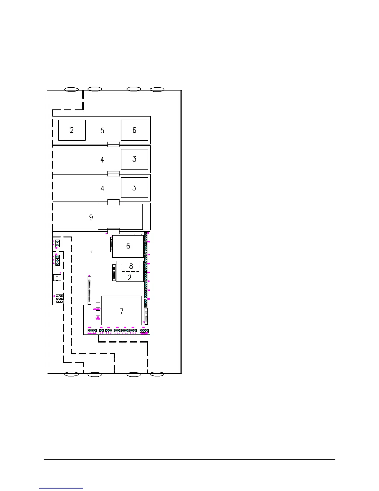
WIRING SEPARATION
All high voltage and non-power limited wiring must be kept separate from power limited wiring. A ¼”
separation must be maintained, with high voltage and non-power limited wiring running in separate
conduit openings from power limited wiring.
E C
A
B H
F
(AC power) or B
B. Non-power limited - High Voltage
(AC power) or A
C. Power limited (or E or F or H)
D. Non-power limited
(Battery If external enclosure required)
E. Power limited (or C or F or H)
F. Power limited (or C or E or H)
G. Non-power limited
(Local Energy or Shunt City Tie)
H. Power limited (or C or E or F)
D G
2. 12522 Loop Driver Board
3. 12401A Class A Adapter
4. 12503 Conventional Expansion Board
5. 12505 Loop/Signal Expansion
6. 12504 Class A Adapter
7. 12402 Relay Board
8. 12511 Serial Isolation Board
9. 12513 DACT Expansion Module

Table of Contents