EasyManua.ls Logo

Festo VTSA-FB - Page 34

Festo VTSA-FB
164 pages
Print Icon
To Next Page IconTo Next Page
To Next Page IconTo Next Page
To Previous Page IconTo Previous Page
To Previous Page IconTo Previous Page
Loading...
1. Summary of components
1−18
Festo P.BE−VTSA−44−EN en 0509NH
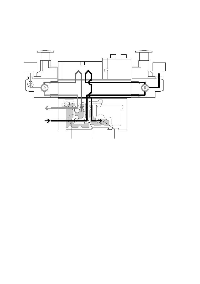
Connection 2 (B)
Connection 4 (A)
123
1 Channel 5 (exhaust)
2 Channel 1 (supply air)
3 Channel 3 (exhaust)
Restrictions:
The exhaust flow is restricted by the pressure regulator.
The pressure regulator cannot be set in the exhaust state,
e.g. the pressure regulator for channel 4 cannot be set if
the valve pressurizes in switch position from channel 1 to
channel 2 and exhausts from channel 4 to channel 5.
Examples of application:
If two different working pressures are required at connec
tions 2 and 4 instead of the operating pressure of the
valve terminal:
If it is not possible to use the reversible pressure
regulator, e.g. when 2x3/2−way valves with ducted
exhaust 82/84 or when a throttle plate is used.

Table of Contents

Related product manuals