EasyManua.ls Logo

FLENDER N-BIPEX BWN - BWT Type; Table A-1 Speed, Geometry Data and Weights for BWN Type; Figure A-2 BWT Type

FLENDER N-BIPEX BWN
68 pages
Print Icon
To Next Page IconTo Next Page
To Next Page IconTo Next Page
To Previous Page IconTo Previous Page
To Previous Page IconTo Previous Page
Loading...
Technical data
Speeds, geometry data and weights
56 Edition 09/2022 M3401-02en
Size Speed
n
max
rpm
D1 / D2
max.
1)
mm
DA
mm
ND1 / ND2
mm
NL1 / NL2
mm
D3
mm
DE
2)
mm
S
mm
S2
Weight
3)
m
kg
mm
perm dev.
mm
55 6,500 75 123 105 65 57 133 30 60 ± 2 5.2
65 6,000 82 138 115 75 64 150 35 65 ± 2.5 7.5
75 5,000 96 160 135 85 76 177 40 104 ± 2.5 13.8
90 4,000 120 205 170 100 95 220 45 85 ± 3 21.4
TableA-1: Speed, geometry data and weights for BWN type
1)
Maximum bore for parallel keyway in accordance with DIN6885/1
2)
Required installation space
3)
Weight applies to one coupling with maximum bore
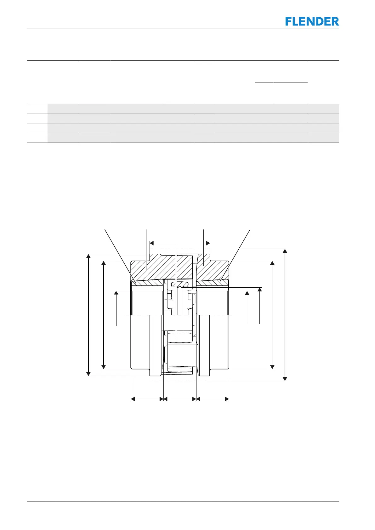
A.1.2 BWT type Speeds, geometry data and weights

'(
1'
'
'
1/
6
1/
'$
1'
'
6

FigureA-2:BWT type
3 Coupling part 3
4 Coupling part 4

Table of Contents

Related product manuals