EasyManua.ls Logo

Follett 12CI400A-LI - Diagnostic sequence - Stage 10

Follett 12CI400A-LI
44 pages
Print Icon
To Next Page IconTo Next Page
To Next Page IconTo Next Page
To Previous Page IconTo Previous Page
To Previous Page IconTo Previous Page
Loading...
22 12CI400A • 12HI400A
GRD
L1
L1
L2
L2
L2
L2
L2
COMPRESSOR
FAN
DRIVE
DR
C
20M
60M
2ND
WTR
B-T
B-E
RESET
GRD
G
B
W
FAN
BLACK
WHITE
BLACK
BLACK
R
ORANGE
S
S
L
COMPRESSOR
C
RED
BLACK
BLACK
INPUT
POWER
WATER
SENSOR
CONTROL
BOARD
24V
COMMON
LINE VAC
RED
RED
WHITE
BLACK
BIN T-STAT
BIN SIGNAL
FROM DISPENSER
JUNCTION BOX
(MCD400A/WVS series –
blk wire is on 24V)
WHITE
RED
WHITE
M
1
COMPRESSOR
SWITCH
PWR
BLACK
T.O.L.
BLACK
RED
HIGH PRESSURE
SAFETY SWITCH
M
WHITE
BLACK
BLUE
RELAY
START
T.O.L.
BLACK
4
2
3
YELLOW
GEAR MOTOR
STA RT
RUN
WHITE
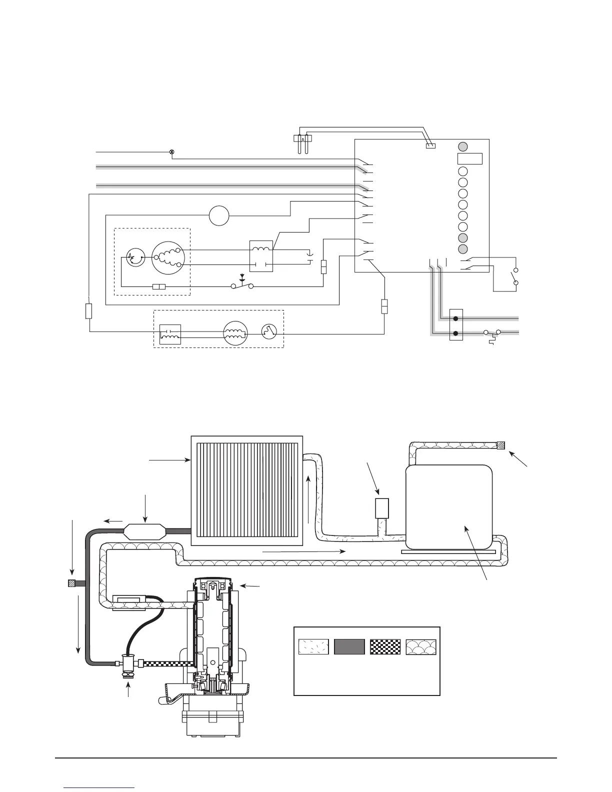
Diagnostic sequence – Stage 10
If the water level in the oat reservoir drops to an unacceptable level, the WTR LED goes out, shutting the
ice machine off. Also, the BT LED comes on, preventing the ice machine from restarting for twenty minutes. If
water is restored, the WTR LED comes back on and ashes to alert the technician that water to ice machine
has been lost. The ice machine restarts at the end of the 20 minute time delay. The ashing WTR LED can be
cleared by pressing the reset button.
Refrigeration cycle
high
pressure
vapor
high
pressure
liquid
low
pressure
liquid
low
pressure
vapor
low side
service port
high pressure
switch
high side
service port
compressorevaporator
thermostatic
expansion valve
condenser
lter dryer

Table of Contents

Related product manuals