EasyManua.ls Logo

Follett 12CI400A-LI - Replacement Parts; Dispenser Exterior

Follett 12CI400A-LI
44 pages
Print Icon
To Next Page IconTo Next Page
To Next Page IconTo Next Page
To Previous Page IconTo Previous Page
To Previous Page IconTo Previous Page
Loading...
12CI400A • 12HI400A 33
12
13
11
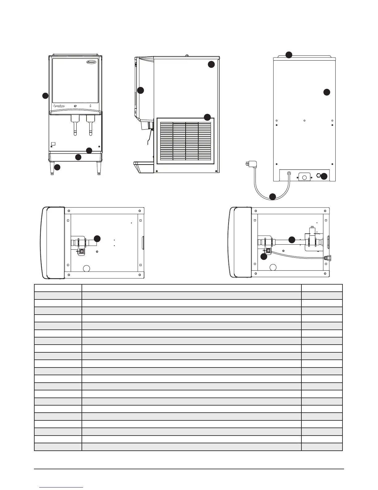
Reference # Description Part #
1 Cover, front (serial numbers below D61292) 502818
1 Cover, front (serial numbers D61292 and above) 00981068
2 Louver, intake, plastic 00967117
Not shown Grille, drain pan 01051614
3 Drain pan, plastic 00967059
4 Drain pan assembly (includes base, pan and grille) 502410
5 Panel, rear 502394
6 Leg kit, 4" (102 mm), adjustable – set of 4 502399
Not shown Fitting, water inlet, brass 502415
Not shown Fitting, water inlet, plastic 502924
7 Fitting, water inlet, brass 3/8" FPT 00137315
8 Lid, top panel, plastic (serial numbers below D61292) 502884
8 Lid, top panel, plastic (serial numbers D61292 and above) 00967091
9 Panel, right side 502396
10 Panel, left side 502395
11 Drain tube assembly, wall mount w/drain pan 502422
12 Drain tube assembly, countertop 502391
13 Elbow, water, 3/8" (10 mm) 502925
Not shown Drain tube assembly, wall mount w/o drain pan 502514
Not shown Bracket, wall 16" (406 mm) 502873
14 Cord and plug, power 502776
Replacement parts
9
2
1
7
14
5
8
3
1
4
6
10
Dispenser exterior

Table of Contents

Related product manuals