EasyManua.ls Logo

Frick QUANTUM 4 - Flow Diagram - D.C. Voltage; Communications Harness

Frick QUANTUM 4
118 pages
Print Icon
To Next Page IconTo Next Page
To Next Page IconTo Next Page
To Previous Page IconTo Previous Page
To Previous Page IconTo Previous Page
Loading...
FRICK
QUANTUM™ COMPRESSOR CONTROL PANEL S90-010 M
MAINTENANCE Page 9
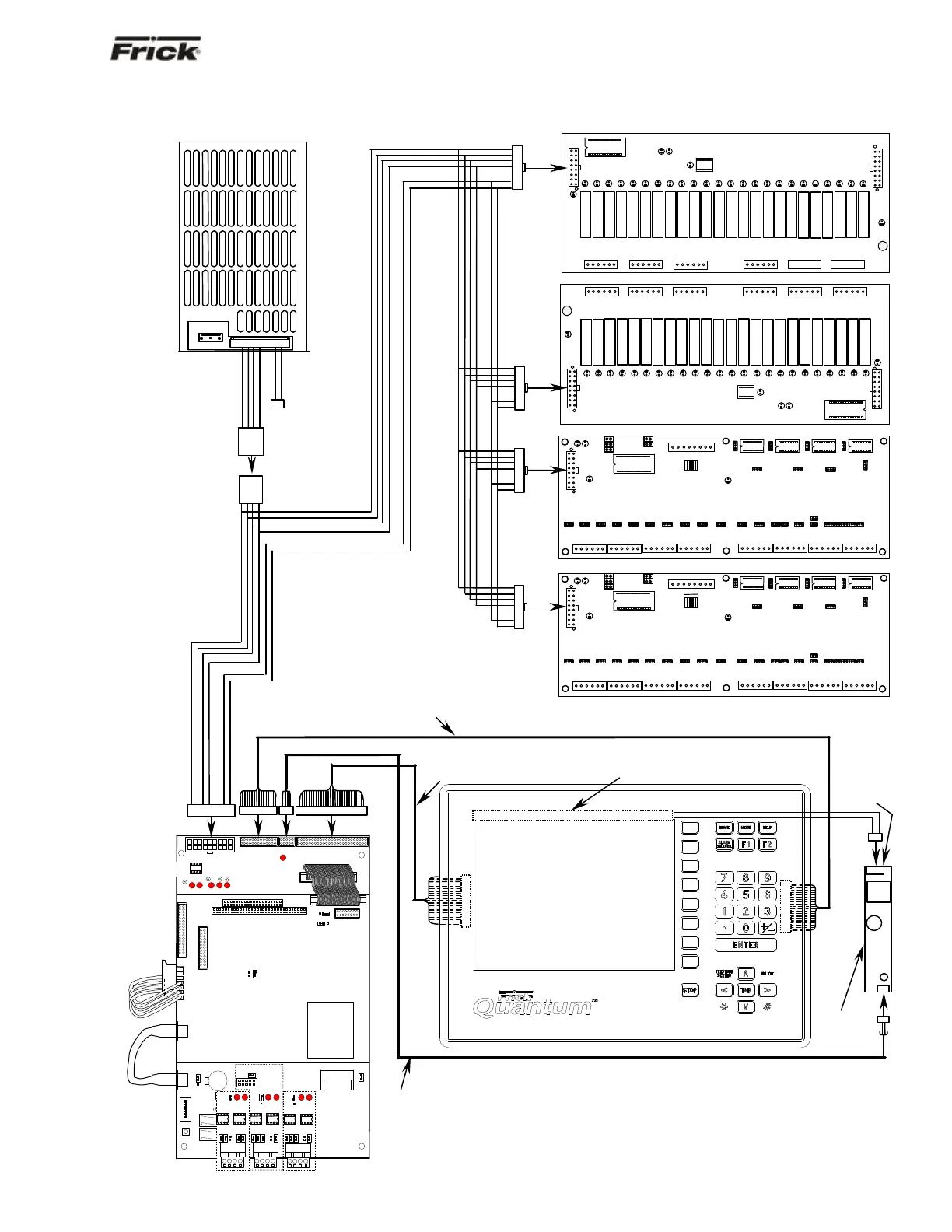
QUANTUM™ 3 FLOW DIAGRAM - D.C. VOLTAGE / COMMUNICATIONS HARNESS
Display (refer to
the chart on
page 34 to
identify type of
display).
Backlight Tube (refer to Display Assembly
Component Replacement Guide)
Caution!
High AC
voltage at
this
connector.
Power
Supply
(Condor
shown).
DC Power -
I/O Communications
Harness
P/N 640B0038H01
Inverter
P/N
333Q0001582
Keypad Cable
P/N 640B0031H01
Display Cable
(refer to Display Assembly
Component Replacement Guide)
This pictorial represents a typical configuration using the Quantum™
3 and is not to scale. Specific units may or may not have both Digital
and Analog boards, depending on options. Additionally, the power
supply may vary. The pictorial is meant to show the proper
interconnection of the D.C. power - I/O communications harness,
keyboard cable and display harness and hardware components.
Inverter Cable
(refer to Display
Assembly
Component
Replacement
Guide)
Quantum™ 3
Digital
Board 1
Digital
Board 2
Analog
Board 2
Analog
Board 1
Factory
Connector

Table of Contents

Other manuals for Frick QUANTUM 4

Related product manuals