EasyManua.ls Logo

FULTON VMP Series - Page 25

FULTON VMP Series
106 pages
Print Icon
To Next Page IconTo Next Page
To Next Page IconTo Next Page
To Previous Page IconTo Previous Page
To Previous Page IconTo Previous Page
Loading...
VMP-IOMM-2018-2
Fulton Ltd
Page 17
INSTALLATION - 2
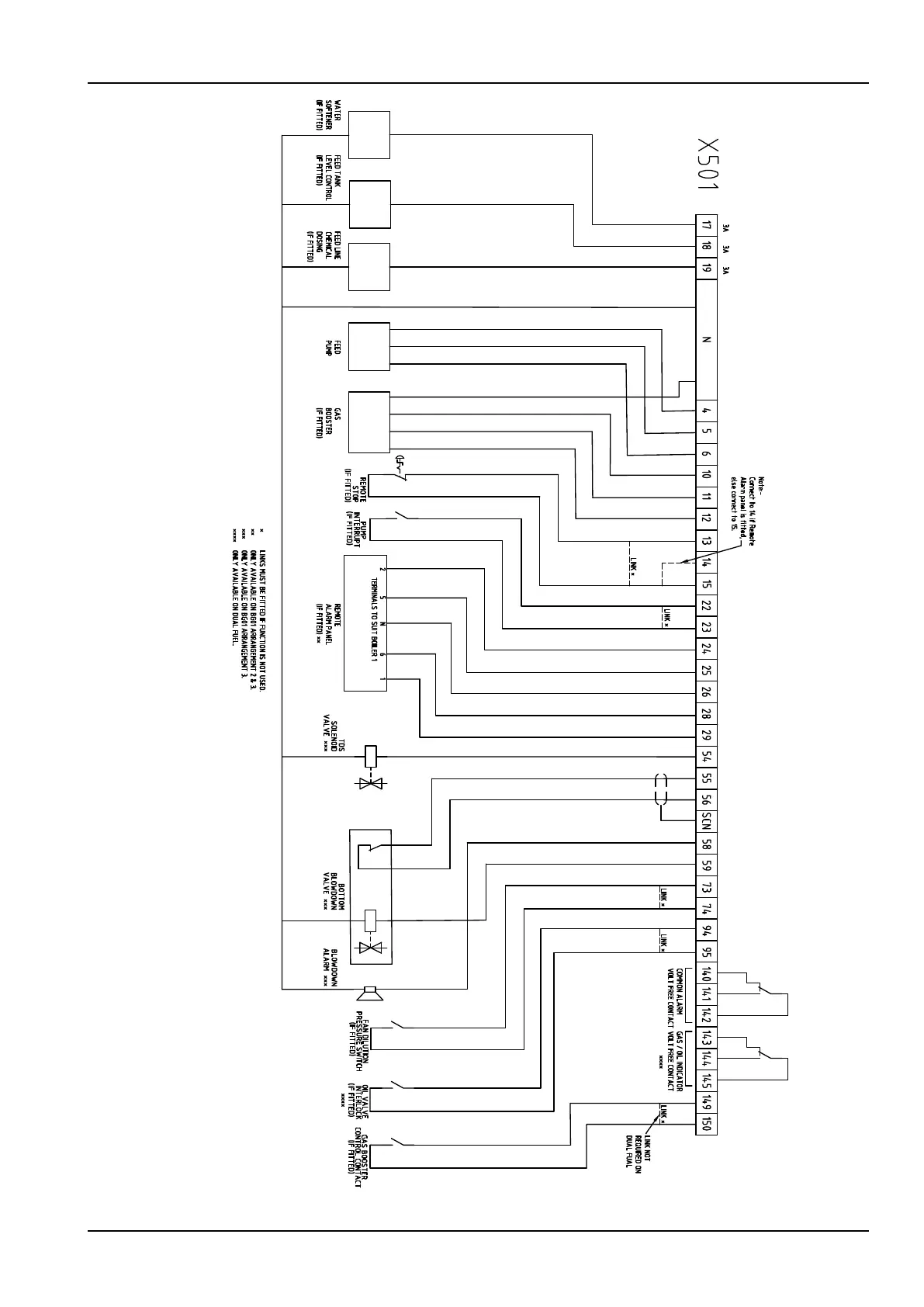
Figure. 10 - Electrical Customer Terminal Connections

Table of Contents

Related product manuals