EasyManua.ls Logo

GE LOGIQ E9 - Page 229

GE LOGIQ E9
808 pages
Print Icon
To Next Page IconTo Next Page
To Next Page IconTo Next Page
To Previous Page IconTo Previous Page
To Previous Page IconTo Previous Page
Loading...
GE
D
IRECTION 5535208-100, REV. 2 LOGIQ E9 SERVICE MANUAL
Chapter 5 Components and Functions (Theory) 5 - 31
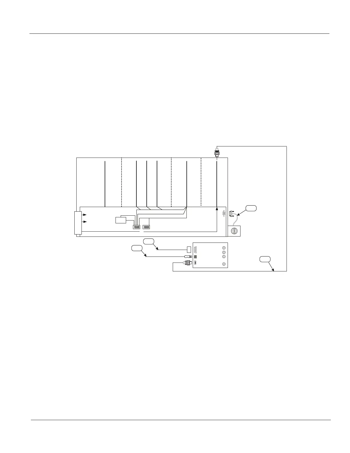
5-7-6 V Nav Inside Option
The VNAV inside allows the use of probes that have built in VNAV sensors, avoiding having external
cables and VNAV bracket use.
The following hardware is introduced to support the VNAV option:
DriveBay2+
GRLY Board with Hi-Pass connection
Card Cage Front Cover to access the GRLY
Cable from GRLY to DriveBay2+ (EE)
Some of them are already present in the standard console, depending upon the console vintage.
Figure 5-20 V Nav Inside Option Block Diagram
BAYBIRD
(VGU
OPTION)
CW PROBE
CONNECTION
(BT2010 OPTION)
S
USB
POWER
RELAY
MRX
GTX
GTX
GTX
PD
BACKPLANE
A
BSCAN
PCI EXPRESS
4D MOTOR DRIVE
CARD RACK
+5V
VPD
I2C
METAL SHIELD
METAL SHIELD
METAL SHIELD
J1
J2
EXTRA PCI
EXPRESS LANES
DOPPLER AUDIO
DC
VOLTAGES
(X2 = P4 on MPS)
PULSER
VOLTAGES
(X1 = P3 on MPS)
EE
Y
Z

Table of Contents

Other manuals for GE LOGIQ E9

Related product manuals