EasyManua.ls Logo

gefran ADV200 WA DC Series

gefran ADV200 WA DC Series
142 pages
To Next Page IconTo Next Page
To Next Page IconTo Next Page
To Previous Page IconTo Previous Page
To Previous Page IconTo Previous Page
Loading...
114 ADV200 WA • Quick start up guide - Specification and installation
421 [16.57”]
350 [13.78”]
175 [6.89”]
836 [32.91”]
275 [10.83”]
360 [14.17”]
853 [33.58”]
924.5 [36.4”]
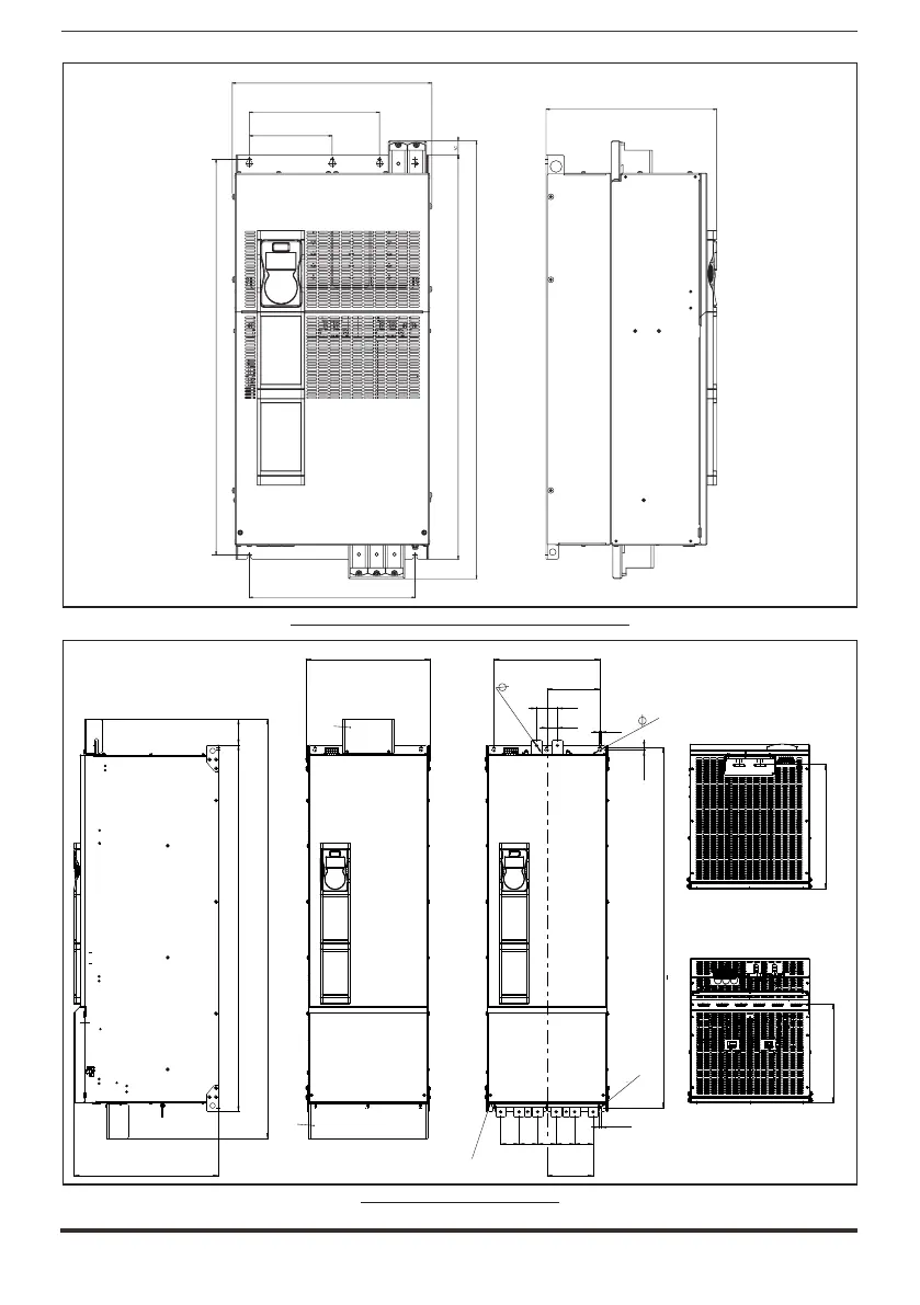
Figure 9.10.11: Size ADV200 WA-61600...-DC dimensions
417 (16.4)
1230 (48.4)
1407 (55.4)
485 (19.1)
1209.5 (47.6)
355.6 (14.0)
177.8
155
6262626262
35
70
(x8)10.5
6.5
13
9.25
6.5
R3.25
332
416.5
87
Vista senza protezioni
View without protections
(*)
(*)
(*) Protezione in policarbonato trasparente
(*) Protective trasparent policarbonate
Figure 9.10.12: Size 7 dimensions

Table of Contents

Related product manuals