EasyManua.ls Logo

Generac Power Systems E - Generac Alternator Schematic Diagram (0 D2379)

Generac Power Systems E
80 pages
Print Icon
To Next Page IconTo Next Page
To Next Page IconTo Next Page
To Previous Page IconTo Previous Page
To Previous Page IconTo Previous Page
Loading...
Generac
®
Power Systems, Inc. 47
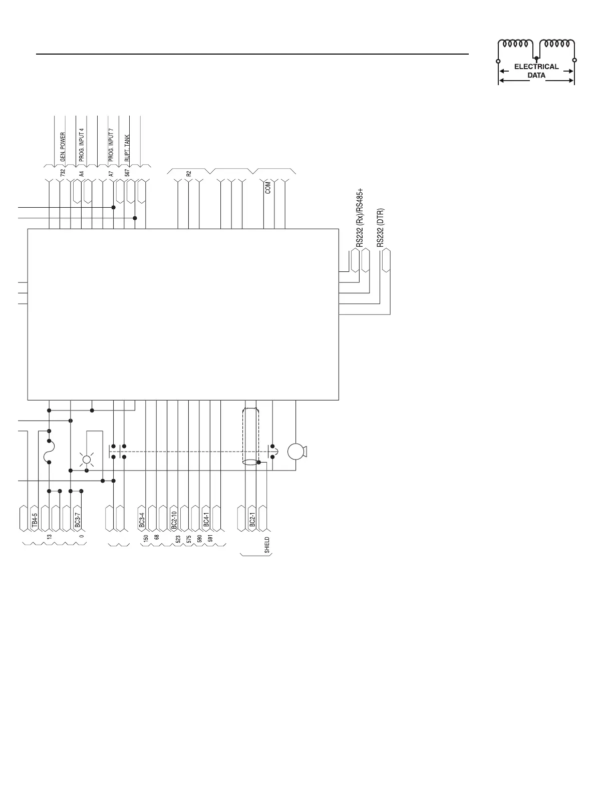
Section 5 — Electrical Data
Schematic Diagram (For Use With Generac Alternator) – Drawing No. 0D2379
For units manufactured with a watertight connector.
Standard diagram. Please refer to the Owner’s Manual of the unit for specific details.
N
/O
G
R
OU
ND FR
O
M EN
G
IN
E
0
B
C3
-12
B
C3
-
6
B
C3
-
1
B
C3
-1
0
P
OS
ITIVE D
C
FR
O
M BATTER
Y
A
U
X. F
US
ED D
C
SU
PPL
Y
P
OS
ITIVE D
C
FR
O
M BATTER
Y
C
HAR
G
E ALT. W
/
L
CO
NN
.
4
9
1
5
1
3
B
C
2-1
1
B
C
4-
8
B
C
4-
7
B
C
2-
8
B
C
2-
9
B
C3
-
3
B
C3
-
9
G
R
OU
ND FR
O
M EN
G
IN
E
PRE-HEAT
SO
LEN
O
I
D
S
TARTER
SO
LEN
O
I
D
F
U
EL
SO
LEN
O
I
D
14
56
F
U
EL
S
ENDER
-
F
U
EL
S
ENDER
+
COO
LANT LEVEL DETE
C
T
OR
F
U
EL LEVEL
S
EN
SOR
O
IL TEMP.
S
EN
SOR
O
IL PRE
SSU
RE
S
EN
SOR
COO
LANT TEMP.
S
EN
SOR
69
85
PR
OG
. INP
U
T
3
A
3
PR
OG
. INP
U
T
2
PR
OG
. INP
U
T
1
BATT
C
HR
G
FAI
L
A1
A2
5
4
4
ML
C
B
O
PE
N
LINE P
O
WE
R
G
R
OU
ND RET
U
R
N
G
R
OU
ND RET
U
R
N
PR
OG
. INP
U
T
8
PR
OG
. INP
U
T
5
PR
OG
. INP
U
T
6
B
C
4-
4
B
C
4-
5
A
5
7
33
A
6
B
C
4-
2
B
C
4-
6
B
C
4-
3
A
8
589
0
0
PR
OG
. RELAY
2
PR
OG
. RELAY
1
N
/O
COM
R1
N
/C
COM
R
3
R4
R
5
B
C
2-
2
B
C
2-12
MA
G
NETI
C
RPM
S
EN
SOR
7
9
0
TB4-
6
TB4-
8
TB4
-
7
PR
OG
. RELAY
3
N
/O
N
/C
R
6
R7
R
8
N
/C
R
9
15
A
F1
L1
E
S
-
3
E
S
-
2
CO
N1-
3
CO
N4-
2
CO
N2-1
0
CO
N4-
4
CO
N4-
6
CO
N4-
1
CO
N1-
2
CO
N1-
1
CO
N2-
6
CO
N
3
-1
4
CO
N
3
-
4
CO
N
3
-
3
CON3-
2
CO
N
3
-
1
CO
N2-1
4
CO
N2-1
3
CON2-
7
CO
N2-
2
CO
N2-
4
CO
N2-
5
CO
N1-
9
CO
N1-1
0
CO
N1-
6
CO
N1-
7
CON1-
8
CO
N1-
5
CO
N1-
4
CO
N
3
-
7
CO
N
3
-
6
CO
N
3
-
5
CO
N
3
-
9
CON3-
8
E
S
-
1
AA
RS232
(
Tx
)
/RS485
-
RS232
(
DSR
)
D
S
UB-
5
CO
N
3
-1
5
CO
N2-1
1
CO
N2-
8
CO
N2-
9
D
S
UB-
4
D
S
UB-
3
D
S
UB-
2
D
S
UB-
1
CO
N
3
-1
0
CO
N
3
-1
3
CO
N
3
-1
2
CO
N
3
-1
1
CO
MM
ON
CO
NTR
O
L B
OX
M
C1
'E'
PANEL

Table of Contents

Related product manuals