EasyManua.ls Logo

Hexagon TT80 - Exemple de Circuit

Hexagon TT80
Print Icon
To Next Page IconTo Next Page
To Next Page IconTo Next Page
To Previous Page IconTo Previous Page
To Previous Page IconTo Previous Page
Loading...
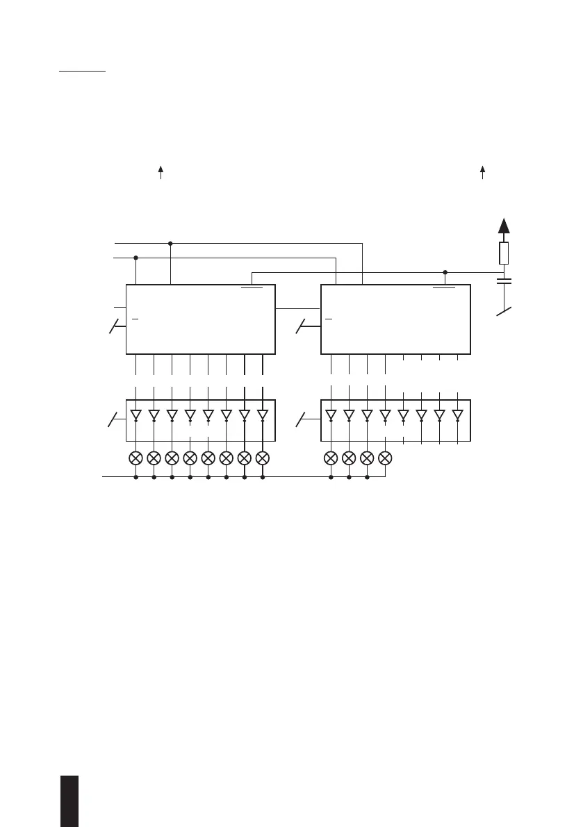
8.4.3 Exemple de circuit
Type de circuit, registre à décalage type 74HC595 – Nombre de classes choisies = 10.
Le bit de la classe correspondante passe de l’état 0 à 1.
Format des données
RJ124350 00000000 00000000 00000000 00000000 00000000
RJ124356 78900000 00000000 00000000 00000000 00000000
RJ124356 78901234 56789000 00000000 00000000 00000000
RJ124356 78901234 56789012 34567890 12345678 90000000
5 10 20 40
Nb classes
5
10
20
40
bit 48 bit 1
RJ1234567890000000000000000000000000000000000000
SCK
RCK
SER
SCLR
Q'
74HC595
G
SCK
SER
Strobe
Clock
DATA
Vcc
LSB
H
Q
A
Q
H
RCK
SCLR
Q
H
MSB
74HC595
Q'
H
Q
A
G
RESET
RJ123456
78910
ULN 2803
ULN 2803
22
Bit 48
envoyé
Bit 1
envoyé

Table of Contents

Related product manuals