EasyManua.ls Logo

Hitachi HA820 G3 Series - Page 170

Hitachi HA820 G3 Series
212 pages
To Next Page IconTo Next Page
To Next Page IconTo Next Page
To Previous Page IconTo Previous Page
To Previous Page IconTo Previous Page
Loading...
Cabling
169
2
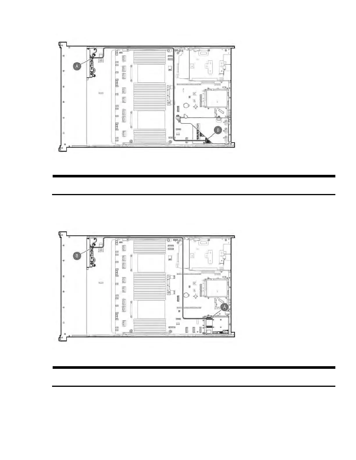
SFF box 1: Primary type-p controller
Cable part number
Color
From
To
P22905-001
1
Orange
Drive backplane
Primary type-p
controller
1
Option kit: P54874-B21
2
SFF box 1: Primary type-o controller
Cable part number
Color
From
To
P51545-001
1
Orange
Drive backplane
Primary type-o
controller
1
Option kit: P48813-B21

Table of Contents

Related product manuals