EasyManua.ls Logo

Hitachi HA820 G3 Series - Serial Port Cabling

Hitachi HA820 G3 Series
212 pages
To Next Page IconTo Next Page
To Next Page IconTo Next Page
To Previous Page IconTo Previous Page
To Previous Page IconTo Previous Page
Loading...
200
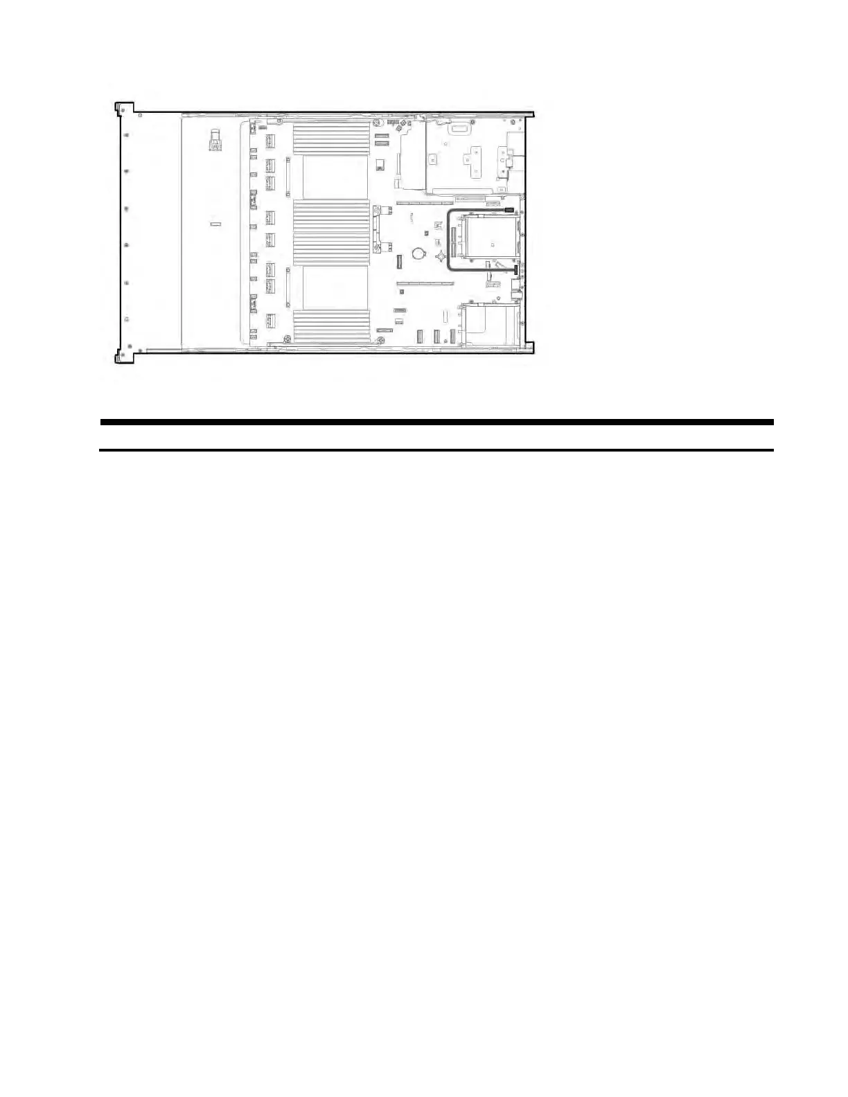
Serial port cabling
Serial port cabling
Cable part number
Color
From
To
P45623-001
1
Orange
Serial port
System board
1
Option kit: P48824-B21

Table of Contents

Related product manuals