EasyManua.ls Logo

Hitachi HA820 G3 Series - LFF Cabling

Hitachi HA820 G3 Series
212 pages
To Next Page IconTo Next Page
To Next Page IconTo Next Page
To Previous Page IconTo Previous Page
To Previous Page IconTo Previous Page
Loading...
178
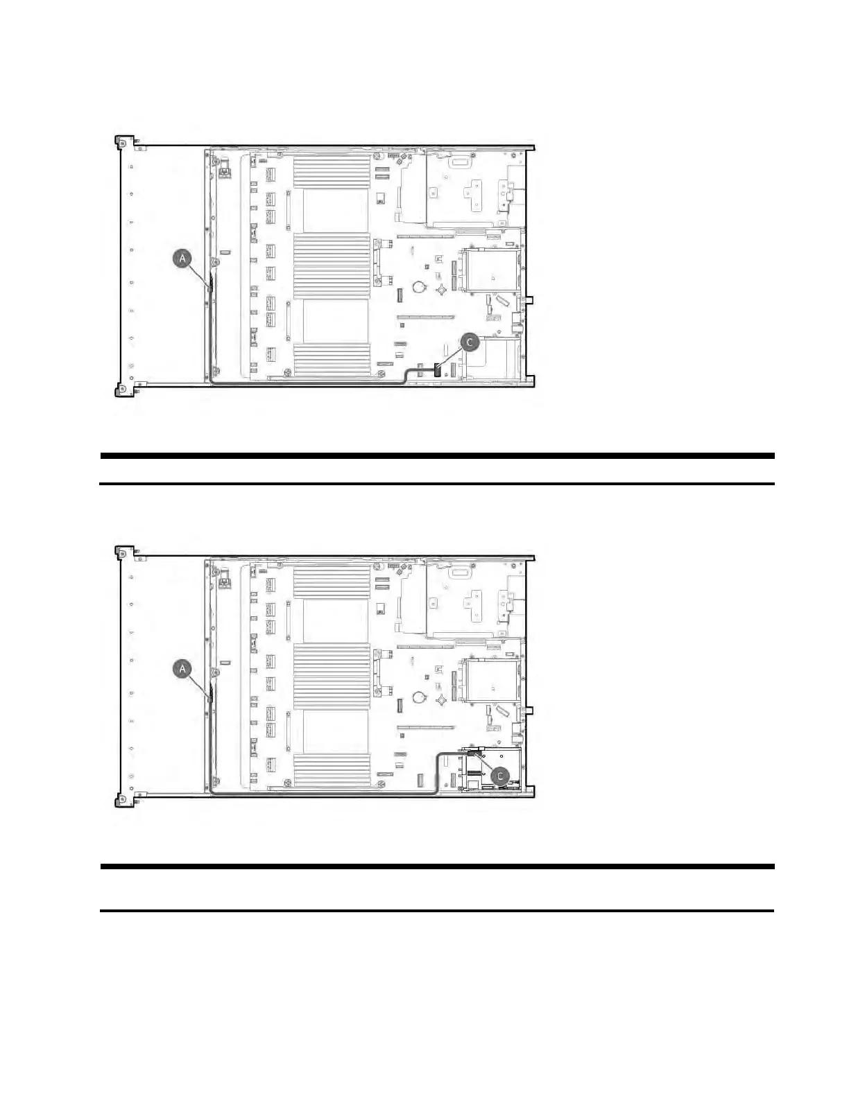
LFF cabling
LFF cabling
LFF box 2 or 3: System board
Cable part number
Color
From
To
P51559-001
Orange
Drive backplane
System board
LFF box 2 or 3: Primary type-o controller
Cable part number
Color
From
To
P51559-001
Orange
LFF box 2 or 3
Primary type-o
controller

Table of Contents

Related product manuals