EasyManua.ls Logo

Hitachi HA820 G3 Series - Page 190

Hitachi HA820 G3 Series
212 pages
To Next Page IconTo Next Page
To Next Page IconTo Next Page
To Previous Page IconTo Previous Page
To Previous Page IconTo Previous Page
Loading...
Cabling
189
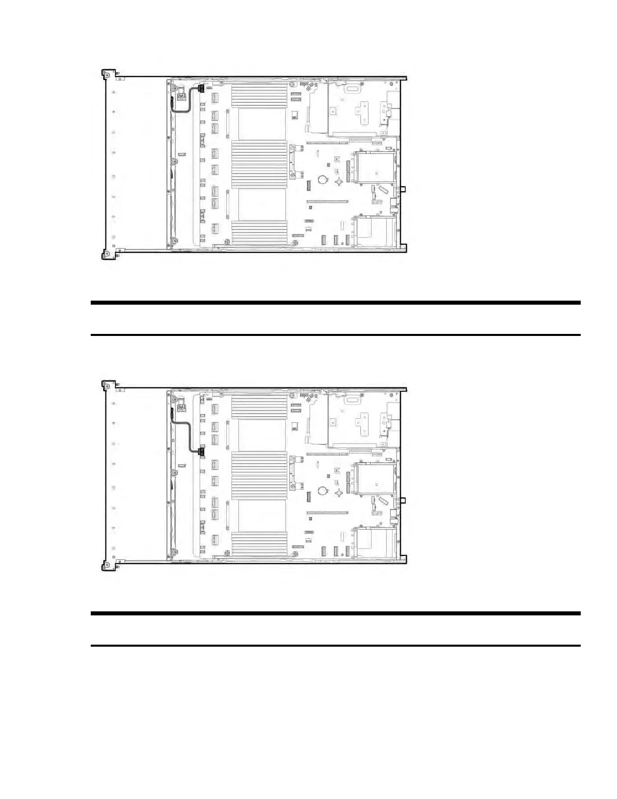
4 LFF box 1
Cable part number Color From To
P14341-001 Orange 4 LFF backplane box
1
System board
4 LFF box 2
Cable part number Color From To
P14342-001 Orange 4 LFF backplane box
2
System board

Table of Contents

Related product manuals