EasyManua.ls Logo

Hitachi WJ Series

Hitachi WJ Series
494 pages
To Next Page IconTo Next Page
To Next Page IconTo Next Page
To Previous Page IconTo Previous Page
To Previous Page IconTo Previous Page
Loading...
Appendix
A-1-4
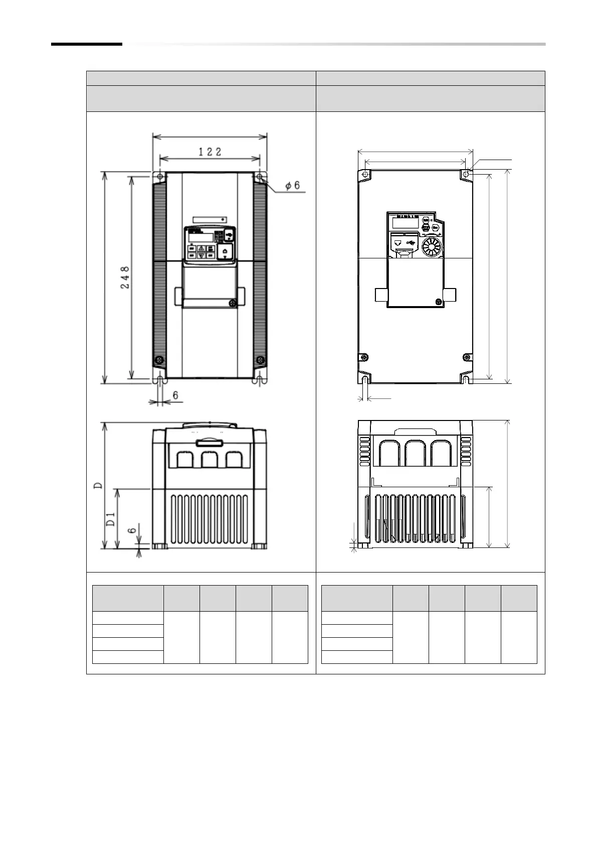
WJ200
WJ-C1
Three-phase 200 V 0557LF/075LF
Three-phase 400 V 055HF/075HF
Three-phase 200 V 0557LF/075LF
Three-phase 400 V 055HF/075HF
Model
W
(mm)
H
(mm)
D
(mm)
D1
(mm)
WJ200-055LF
140
260
155
73.3
WJ200-075LF
WJ200-055HF
WJ200-075HF
Model
W
(mm)
H
(mm)
D
(mm)
D1
(mm)
C1-055LF
140
260
155
74
C1-075LF
C1-055HF
C1-075HF
140 (W)
260 (H)
122
140 (W)
248
260 (H)
6
2-φ6
D1
D
2-6

Table of Contents

Related product manuals