EasyManua.ls Logo

Huawei UPS2000-G - Site

Huawei UPS2000-G
186 pages
Print Icon
To Next Page IconTo Next Page
To Next Page IconTo Next Page
To Previous Page IconTo Previous Page
To Previous Page IconTo Previous Page
Loading...
4.1.1 Site
Floor Loading Capacity
The oor must be able to bear the weight of the UPS and its optional
components. In the case of rack-mounted installation, ensure that the oor can
also bear the weight of the rack.
Installation Environment
Do not install the UPS in a high-temperature, low-temperature, or damp place
that is beyond the technical specications.
Keep the UPS far away from water, heat sources, and ammable and
explosive substances. Install the UPS in an environment free of dust, volatile
gas, salt, and corrosive materials. Avoid direct sunlight.
Do not install the UPS in environments with conductive metal scraps in the
air.
The optimal operating temperature for batteries is 20–30ºC. Temperatures
higher than 30ºC shorten the battery lifespan, and temperatures lower than
20ºC reduces the battery backup time.
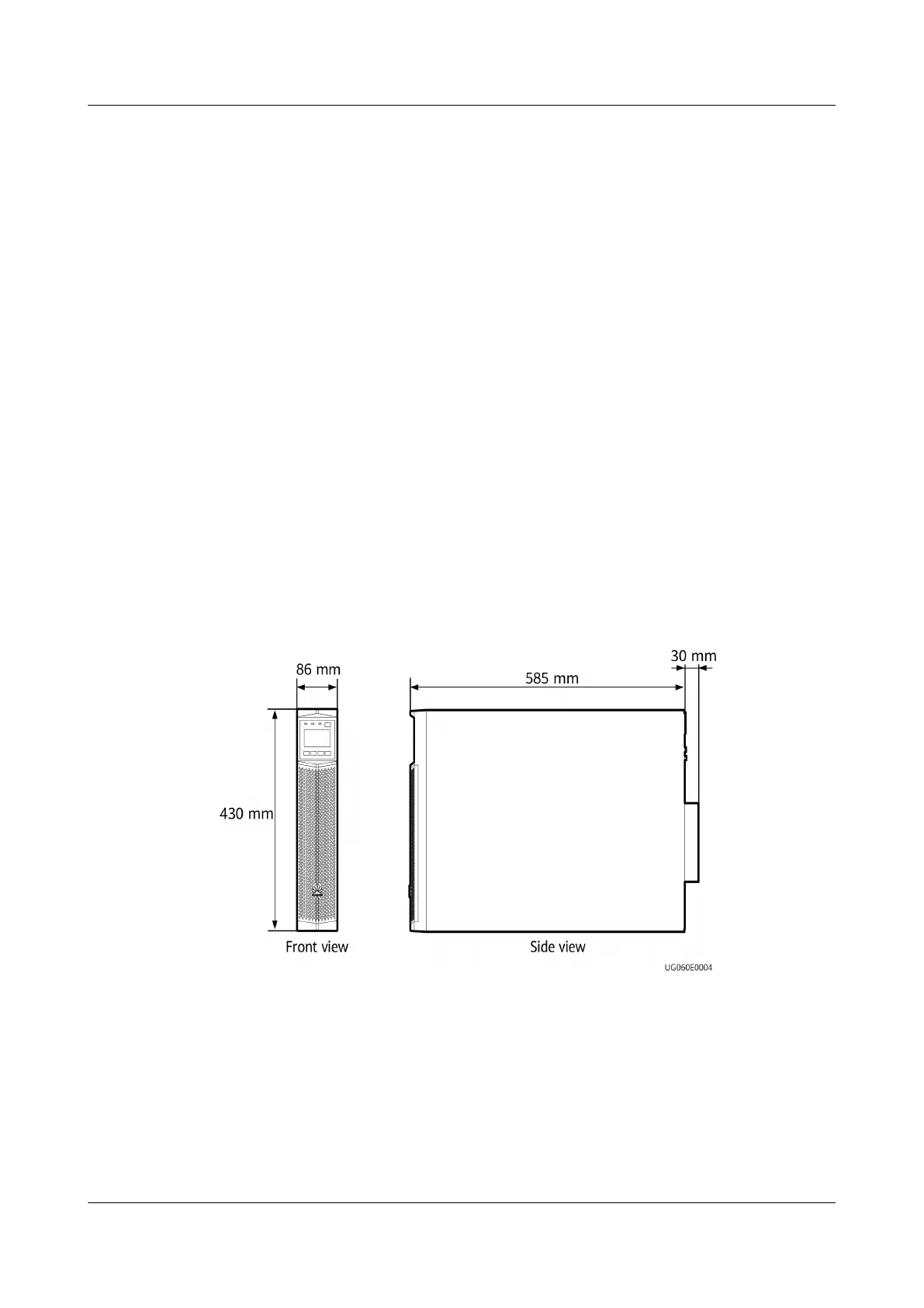
UPS2000-G-6 kVA/10 kVA Dimensions
Figure 4-1 UPS2000-G-6 kVA/10 kVA installation dimensions
UPS2000-G-(6 kVA–20 kVA)
User Manual (Lead-Acid Battery) 4 Installation
Issue 23 (2024-03-15) Copyright © Huawei Digital Power Technologies Co., Ltd. 50

Table of Contents

Related product manuals