EasyManua.ls Logo

IHI 17VX3 - Electrical Wiring System Diagram

IHI 17VX3
130 pages
Print Icon
To Next Page IconTo Next Page
To Next Page IconTo Next Page
To Previous Page IconTo Previous Page
To Previous Page IconTo Previous Page
Loading...
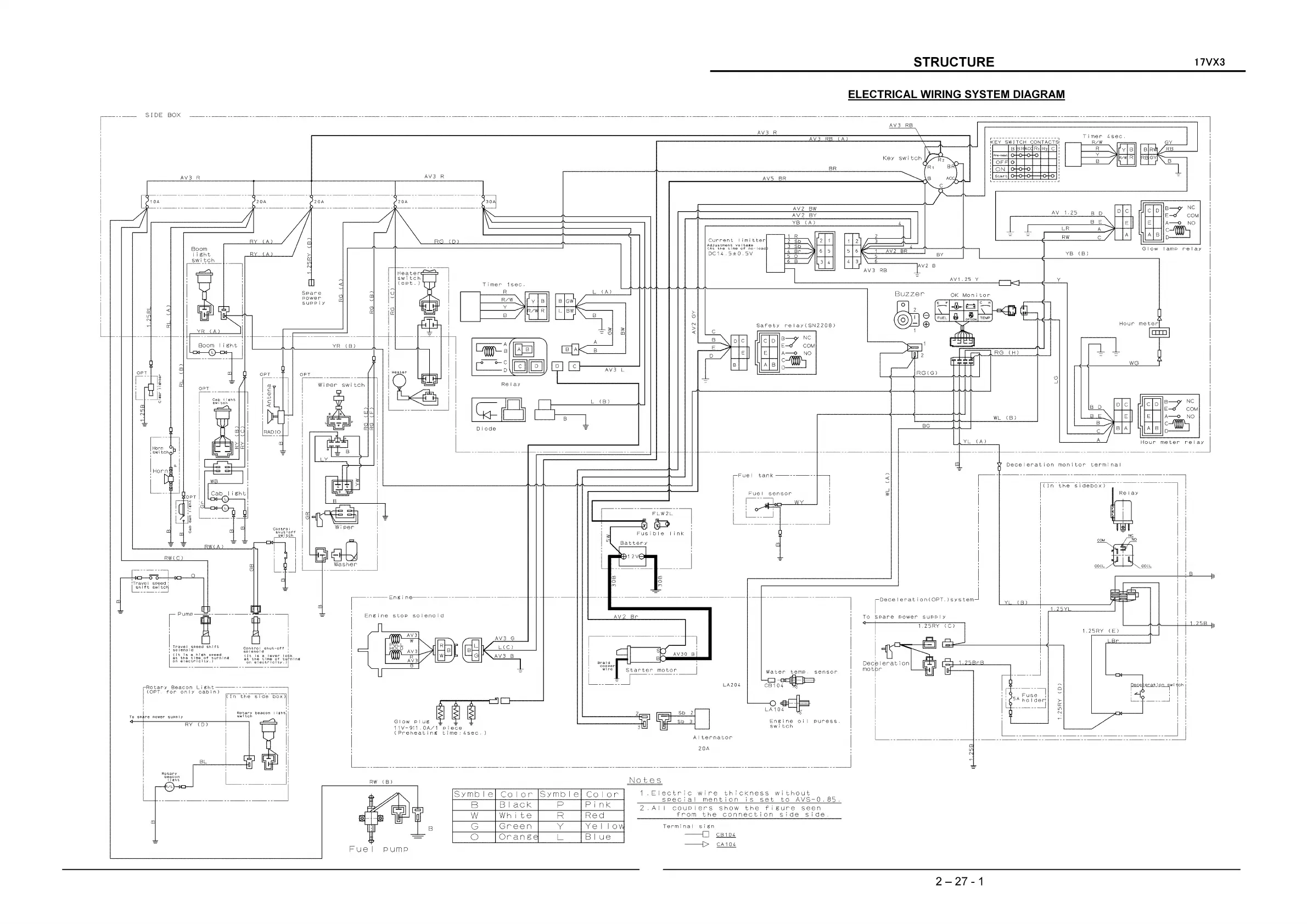
STRUCTURE
17VX3
ELECTRICAL WIRING SYSTEM DIAGRAM
.25B
II
B
Glow
lamp
relay
[
Jm
c
D
~7
~~M
E
A--o
NO
lAB~
WG
Hour
YB
(B)
RW
LR
>-
n:::
t.n
N
Y
AV
1.25
YL
WL
(B)
YL
(A)
OK
Monitor
AV1.25
Y
Deceleration
monitor
terminal
!-flay
~
NC
NO
BG
1.25RY
(
C)
leration(OPT.
Buzzer
AV3
RB
co
To
power
supply
Decl,~
mot(e~tion~
!
!
~-----------~-----------------------~---------~
BR
B----?, NC
E-O
COM
A--o
NO
~~
Oil
puress.
Water
temp-
sensor
CB1~
lA10~
:-:
AV5
BR
AV3
R
Safety
relay(SN2208)
I
tank
--------
Fuel
sensor
LA204
Alternator
20A
N
>
«
Terminal
sign
--D
CB104
--[>
CA104
FLW2L
Fusible
I
ink
Battery
A
B
AV3
L
L
(B)
Timer
1sec.
Diode
Symbl
e
Color
SYmble
I
Co
lor
B
Black
P
Pink
W
White
R
Red
G
Green
Y
Ye I
lOlA
0
Orange
L
Blue
AV3
R
Glow
plug
~....----r-$
~$
d
11V-9~1-0A/1
piece
(Preheating
time:4sec.)
RW
(B)
(9
n:::
,-------Enginp---------------------------I---!---f--------l-If-+-----
__
------------------------------1--+-----------------------,
~~B
Fue
I pump
YR
(B)
Spare
power
suppiy
Boom
light
swi
tch
~---
19
SIDE
BOX
2 -
27
- 1

Table of Contents

Related product manuals