EasyManua.ls Logo

Immergas MAGIS COMBO V2 - Page 29

Immergas MAGIS COMBO V2
46 pages
Print Icon
To Next Page IconTo Next Page
To Next Page IconTo Next Page
To Previous Page IconTo Previous Page
To Previous Page IconTo Previous Page
Loading...
MAGIS COMBO V2
29
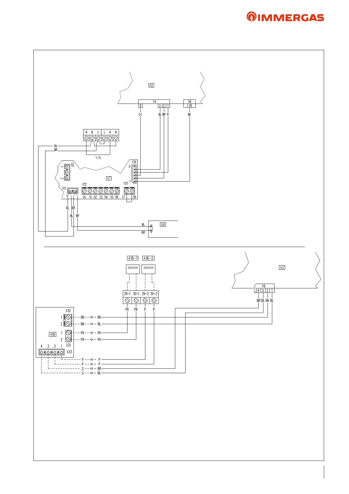
KEY:
A2 - P.C.B.
A7 - ree-relay board (optional)
G4 - 24 Vdc power supply unit
Colour code key:
BK - Black
BL - Blue
BR - Brown
G - Green
GY - Grey
OR - Orange
P - Purple
PK - Pink
R - Red
W - White
Y - Yellow
Y/G - Yellow/Green
W/BK - White/Black
Colour code key:
BK - Black
BL - Blue
BR - Brown
G - Green
GY - Grey
OR - Orange
P - Purple
PK - Pink
R - Red
W - White
Y - Yellow
Y/G - Yellow/Green
W/BK - White/Black
Instant version / PLUS version
KEY:
A2 - P.C.B.
A16-1 - Dehumidier zone 1
A16-2 - Dehumidier zone 2
A19 - Two-relay board (optional)

Table of Contents

Related product manuals