EasyManua.ls Logo

JMC NT–2000 - Page 92

Default Icon
102 pages
Print Icon
To Next Page IconTo Next Page
To Next Page IconTo Next Page
To Previous Page IconTo Previous Page
To Previous Page IconTo Previous Page
Loading...
NT-2000 REF Manual
Theory of Operation
8-5
8. Summarized Theory of Operation (
continued
5/6
)
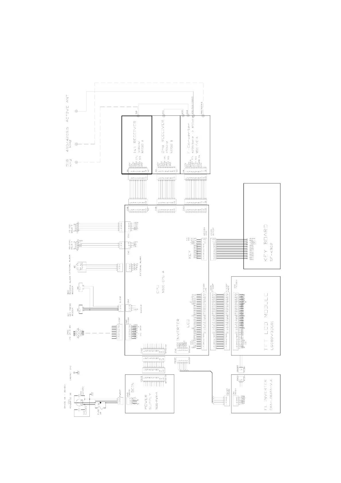
Figure 8-1 Interconnections
(
continued on next page
)

Table of Contents

Related product manuals