EasyManua.ls Logo

JUKI TR6SNR - Page 18

JUKI TR6SNR
126 pages
Print Icon
To Next Page IconTo Next Page
To Next Page IconTo Next Page
To Previous Page IconTo Previous Page
To Previous Page IconTo Previous Page
Loading...
Maintenance Guide
3-2
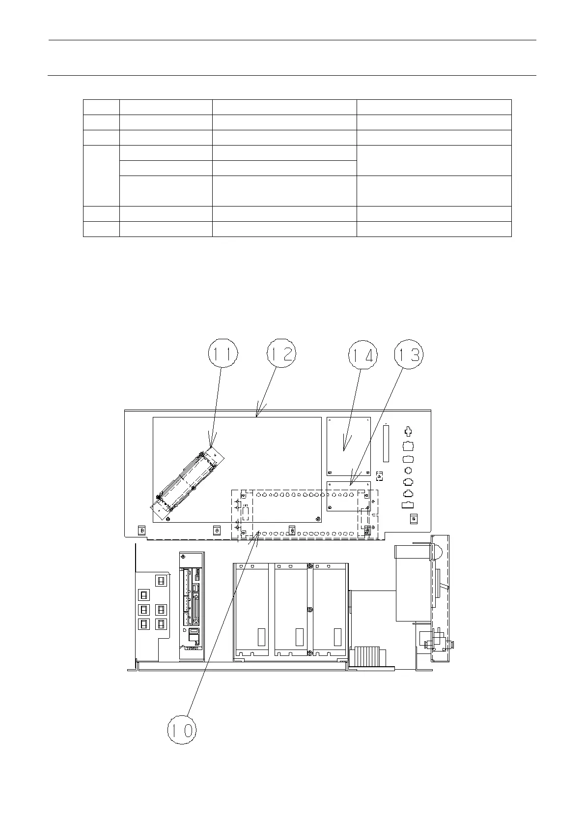
No.
Part No.
Part name
Remarks
10
HX005500000
Switching power supply
11
40045016
AC fan motor ASM
12
40046217 note1
Main PCB A (6S) ASM
Spare part No.: 40095256 note3
For TR6SNR
40137757 note2
Main PCB A ASM (6S)
40095247 Main PCB ASM (6S)
Spare part No.: 40095246
For TR6SNX/6SNV
13
40042575
Slow mode CTRL PCB ASM
Slow 2 mode: optional
14
40042153
AWC PCB ASM
Automatic width adjustment: optional
note1. 40046217 is a part No. mounted in the ROM.
note2. 40137757 is a part No. not mounted in the ROM (Software is already written.)
note3. 40137756 can be used in common for TR6DNR/6SNR/5SNR.
Since software is already written in 40137756, ROM installation is not required.

Table of Contents

Related product manuals