EasyManua.ls Logo

Kyocera TASKalfa 7002i - Page 499

Kyocera TASKalfa 7002i
1627 pages
Print Icon
To Next Page IconTo Next Page
To Next Page IconTo Next Page
To Previous Page IconTo Previous Page
To Previous Page IconTo Previous Page
Loading...
2WA/2NJ/2RK
4-171
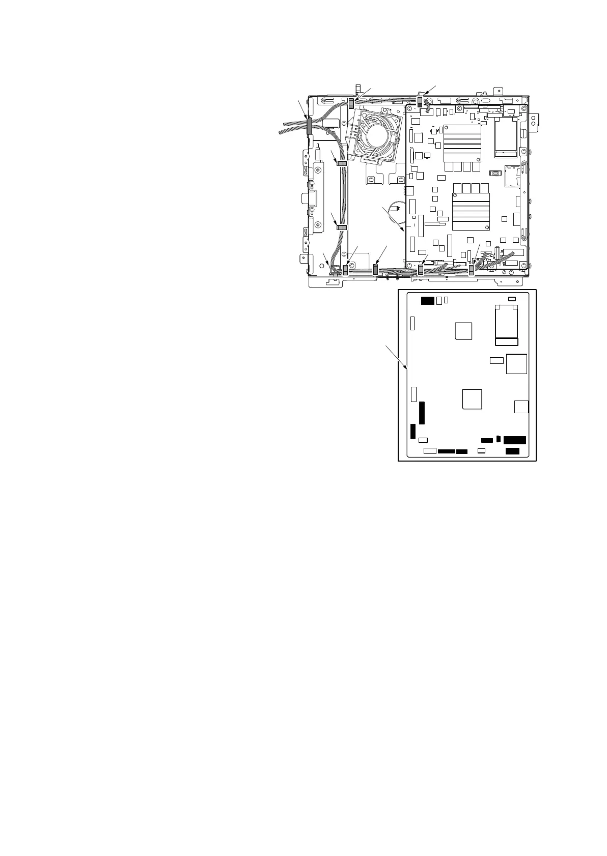
11. Disconnect nine connectors from the
main PWB (a).
12. Release seven wire saddles (b) and
remove the wire.
13. Release the cable tie with a snap (c).
14. Remove the edge saddle (d) and
remove the wire.
Figure 4-253
10
10
3
52
10
6
20
7
13
6
21
40
B15
B1
15
A1
YC33
YC42
YC32
YC23
YC51
YC2
YC5
YC59
YC58
YC11
YC63
YC9
YC8
YC10
YC6
YC12
1
5
A15
YC60
3
1
1
1
1
1
1
1
1
1
1
1
1
1
1
1
1
YC64
YC65
41
1
YC62
1
20
b
b
d
b
b
b
b
c
b
b
a
a
14j0406

Table of Contents