EasyManua.ls Logo

L-Acoustics L2 - Page 90

L-Acoustics L2
206 pages
Print Icon
To Next Page IconTo Next Page
To Next Page IconTo Next Page
To Previous Page IconTo Previous Page
To Previous Page IconTo Previous Page
Loading...
Rigging procedures
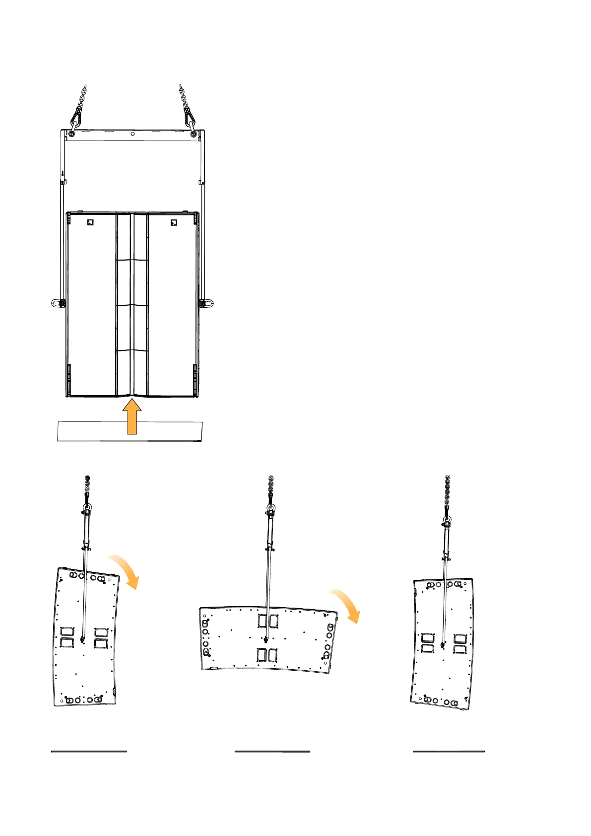
7. Slowly and carefully raise the enclosure about 40 cm / 1.33 ft from the ground.
Remove the pallet and bottom lid of the delivery packaging.
8. Carefully turn over the enclosure.
9. Position L2-CHARIOT/L2D-CHARIOT underneath the assembly.
10. Carefully lower the assembly until the enclosure rests in L2-CHARIOT/L2D-CHARIOT.
90 L2 owner's manual (EN) version 5.0

Table of Contents

Related product manuals