EasyManua.ls Logo

Lenovo ThinkSystem SR860 V2 - Page 102

Lenovo ThinkSystem SR860 V2
336 pages
To Next Page IconTo Next Page
To Next Page IconTo Next Page
To Previous Page IconTo Previous Page
To Previous Page IconTo Previous Page
Loading...
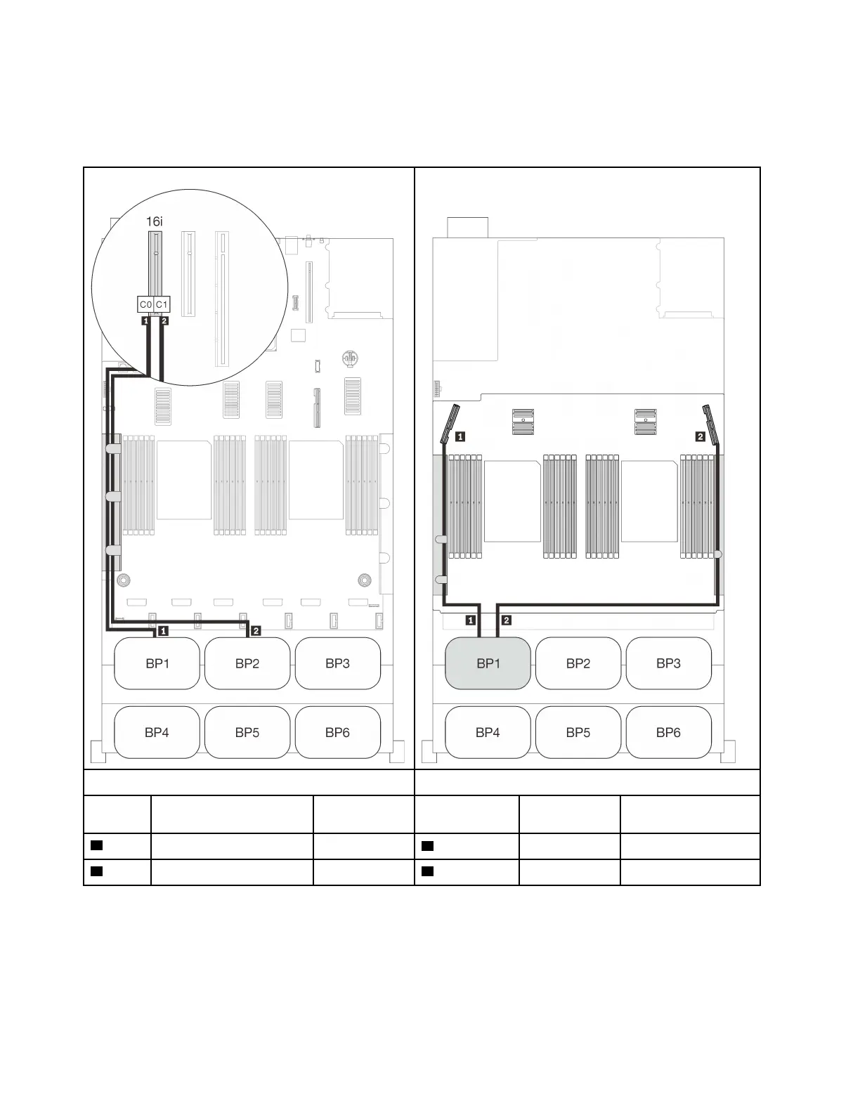
Two backplanes
One AnyBay and one SAS/SATA backplane
16i RAID adapter
SAS/SATA cable routing PCIe cable routing
Length
To
NVMe
connector
Length
To
1
665 mm
C0 (16i)
1 0-1, 2-3 530 mm
PCIe 3 (tray)
2
860 mm
C1 (16i)
2 4-5, 6-7 670 mm
PCIe 6 (tray)
94 ThinkSystem SR860 V2 Maintenance Manual

Table of Contents

Other manuals for Lenovo ThinkSystem SR860 V2

Related product manuals