EasyManua.ls Logo

Lenovo ThinkSystem SR860 V2 - Page 107

Lenovo ThinkSystem SR860 V2
336 pages
To Next Page IconTo Next Page
To Next Page IconTo Next Page
To Previous Page IconTo Previous Page
To Previous Page IconTo Previous Page
Loading...
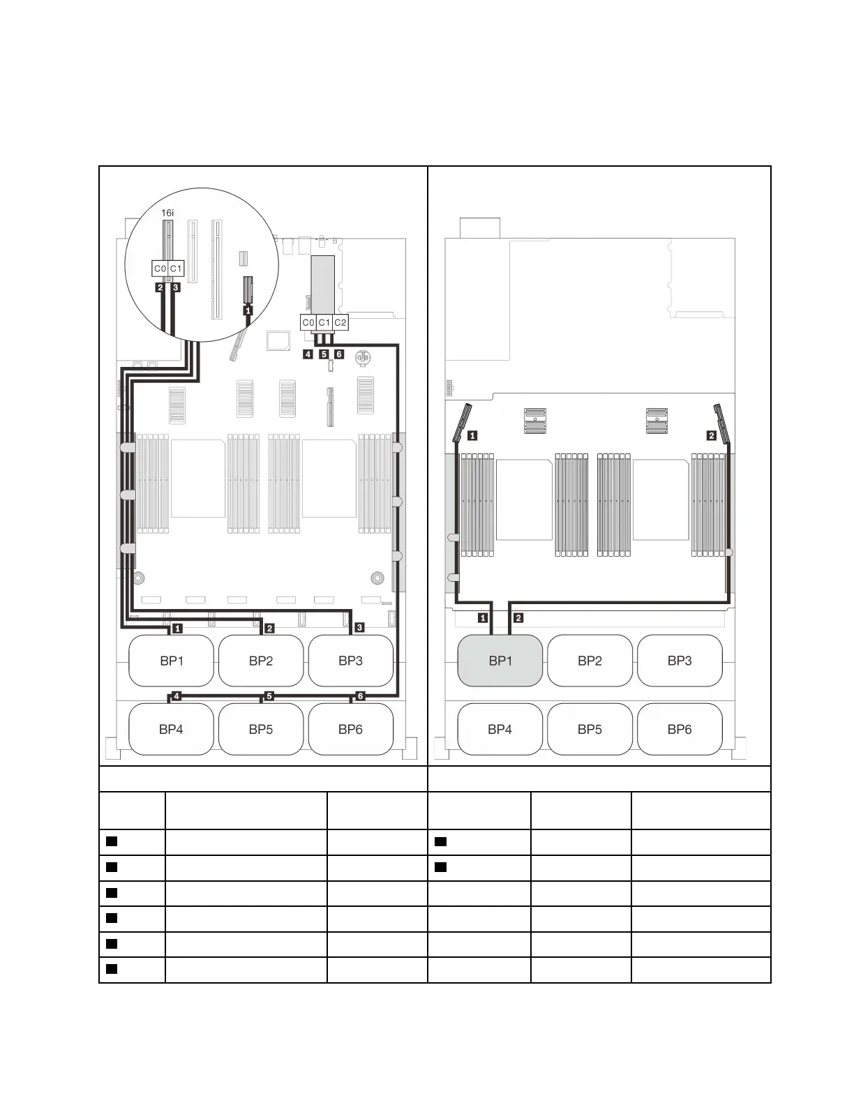
Six backplanes
One AnyBay and five SAS/SATA backplanes
On-board SATA + 16i + 32i RAID adapters
SAS/SATA cable routing PCIe cable routing
Length
To
NVMe
connector
Length
To
1
845 mm
On-board
1 0-1, 2-3 530 mm
PCIe 3 (tray)
2
860 mm
C0 (16i)
2 4-5, 6-7 670 mm
PCIe 6 (tray)
3
1000 mm
C1 (16i)
4
820 mm
C0 (32i)
5
690 mm
C1 (32i)
6
665 mm
C2 (32i)
Chapter 3. Internal cable routing 99

Table of Contents

Other manuals for Lenovo ThinkSystem SR860 V2

Related product manuals