EasyManua.ls Logo

Linde E30 - Temperature Monitoring Traction Motors; Temperature Monitoring with Thermal Switches to Series 6;95

Linde E30
168 pages
Print Icon
To Next Page IconTo Next Page
To Next Page IconTo Next Page
To Previous Page IconTo Previous Page
To Previous Page IconTo Previous Page
Loading...
Service Training
Section 2.6
Page 50
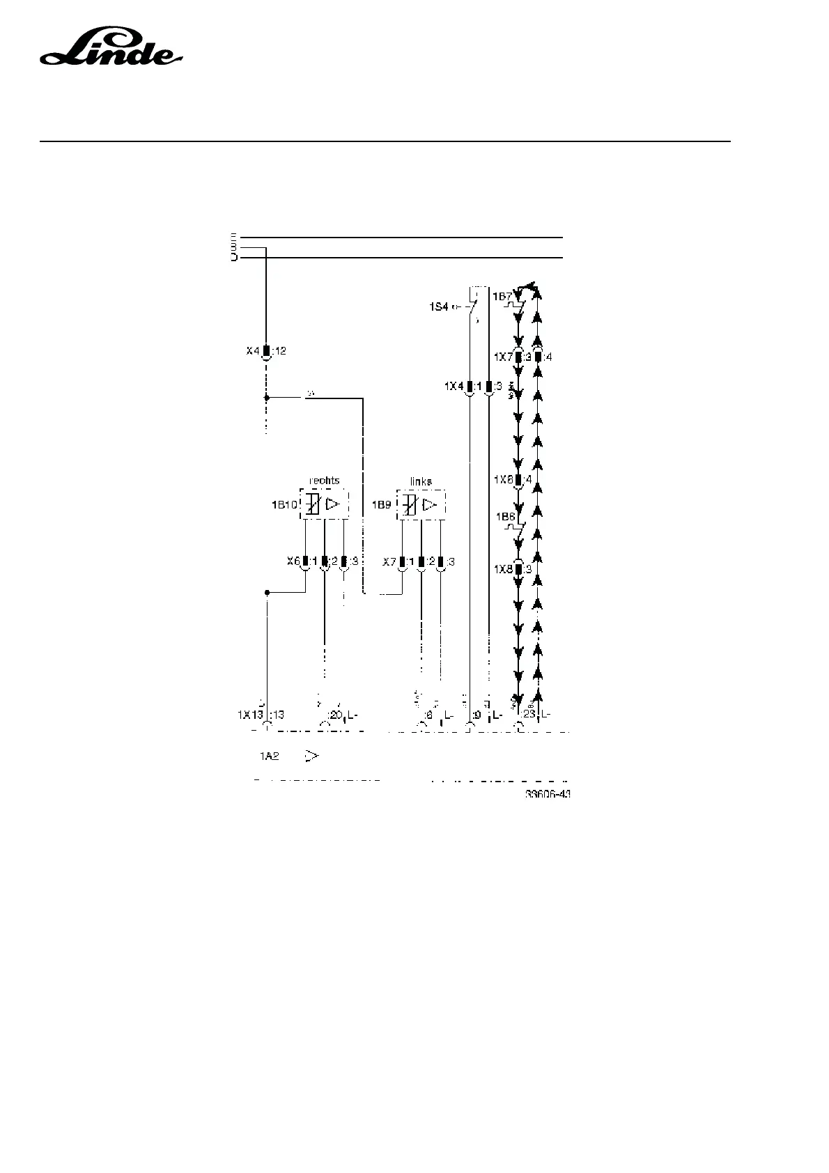
2.6.6.7 TEMPERATURE MONITORING TRACTION MOTORS
A thermal switch 1B6 or 1B7 is mounted to each or the traction motor brush holders. When the temperature
of a traction motor reaches 160 °C, the battery negative signal normally applied to connector 1X13:23 is cut
off. The maximum current or motor voltage is reduced to prevent damage to the traction motors. However,
it is possible to drive the truck at reduced speed.
2.6.6.7.1 TEMPERATURE MONITORING WITH THERMAL SWITCHES TO SERIES 6/95

Table of Contents

Related product manuals