EasyManua.ls Logo

Linde E30 - Page 91

Linde E30
168 pages
Print Icon
To Next Page IconTo Next Page
To Next Page IconTo Next Page
To Previous Page IconTo Previous Page
To Previous Page IconTo Previous Page
Loading...
Service Training
Section 2.6
Page 37
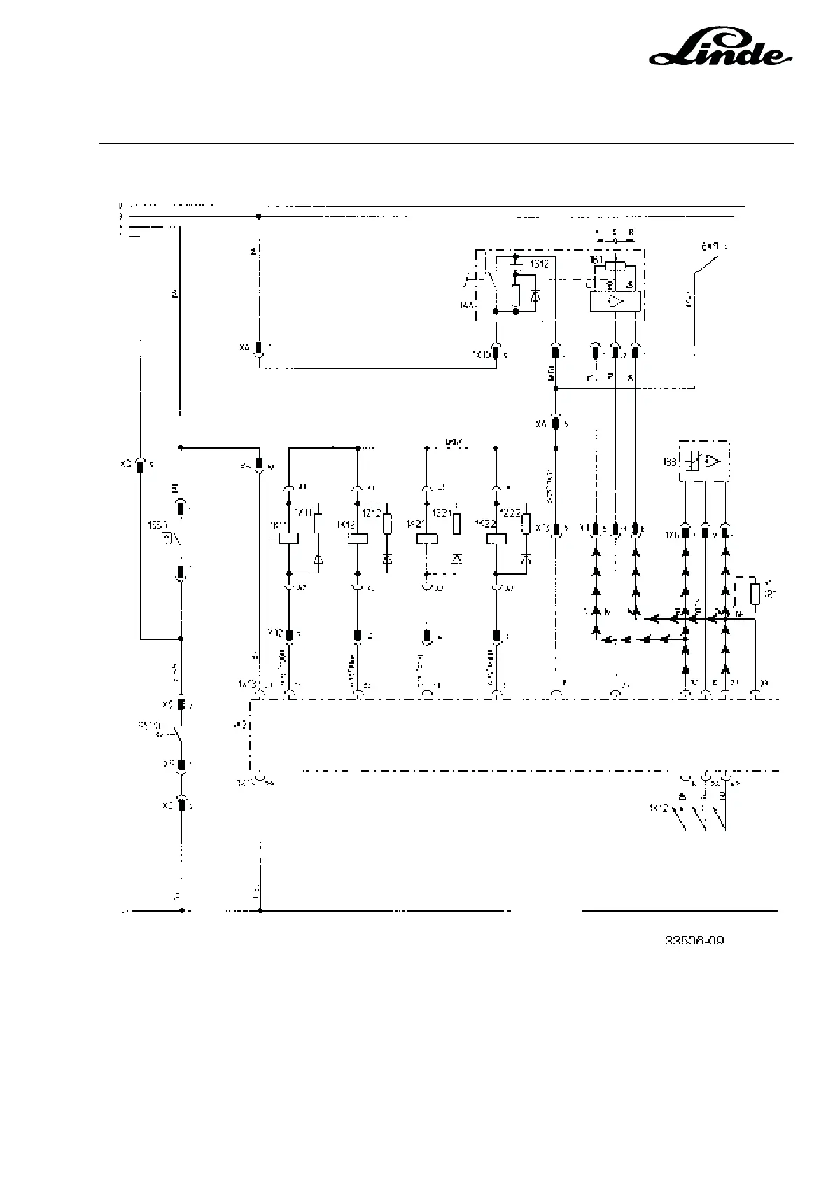
The electronic traction control unit makes a stabilized 15 V direct current supply of the 24 VDC from the
voltage converter. This d.c. voltage supplies the electronic traction control unit, the integrated circuits and
other electronic components. This 15 Volt power supply is also required for the accelerator sensor, the current
sensor and the speed sensor.
Supply voltage for accelerator sensor and current sensor:
+15 V via 1X13:12
Negative via 1X13:27

Table of Contents

Related product manuals