EasyManua.ls Logo

Magnescale LT10A-105 - 9 Anzeige;Ausgabe von Alarm

Default Icon
108 pages
Print Icon
To Next Page IconTo Next Page
To Next Page IconTo Next Page
To Previous Page IconTo Previous Page
To Previous Page IconTo Previous Page
Loading...
LT10A / LT11A Series
40 (G)
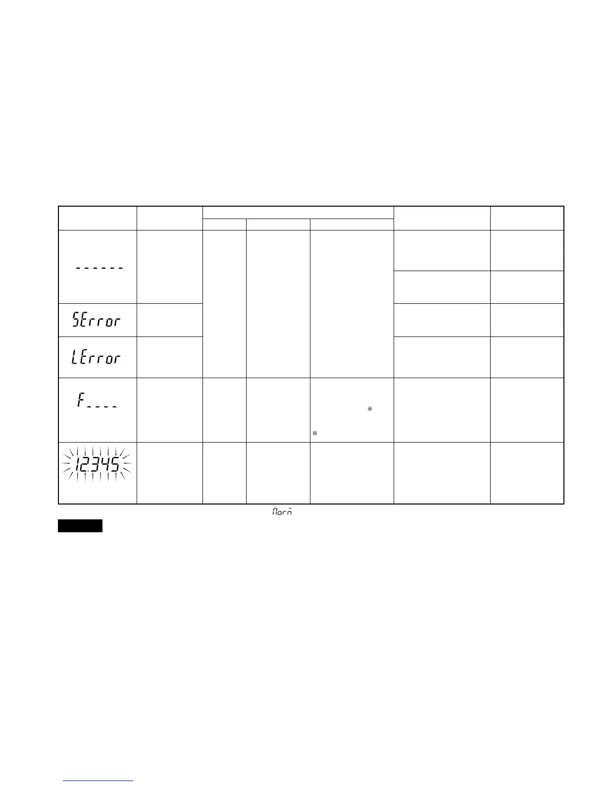
9. Anzeige/Ausgabe von Alarm
(Hinweis) Wenn das Ausgabedatenformat die Anfangseinstellung ist. Weitere Formate finden Sie auf Seite 38, 39.
Hinweis
Falls der Alarm nach der Lösung des Problems erneut angezeigt/ausgegeben wird
Ist der Messtaster oder ihre Spindel starken Erschütterungen ausgesetzt worden?
Wechseln Sie den Messtaster der Kanal versuchsweise gegen eine normal funktionierende aus.
Flüssigkristall-
Gegenstand
Ausgabe
Ursache Abhilfe
Anzeige
E/A-Anschlüsse
BCD RS-232C
(Hinweis)
ckstellung
Ursache beseitigen
und Rückstellung
vornehmen.
ckstellung
Ursache beseitigen
und Rückstellung
vornehmen.
Eingabe auf fünt
Stellen begrenzen
und rückstellen.
Den Messtaster um
mindestens 1 mm
bewegen, und eine
ckstellung
vornehmen.
Alarmklemme ist
“H”
Wahr-Zustand:
Alle fünften
Stellen sind „H”.
Unwahr-Zustand:
Alle fünften
Stellen sind “L”.
Alarmklemme ist
„H”.
Alle “H”
Alle “H”
E
C
R
L
F wird
ausgegeben.
( ist A oder B.)
>FX.XXX
C
R
L
F
ausgegeben.
( ist A oder B, > ist
ein Pluszeichen
oder
ein Minuszeichen, X
ist ein Zahlzeichen.)
: (“+” oder Leerstelle )
E
C
R
L
F wird
ausgegeben.
( ist A oder B.)
Der Messtaster ist bei
eingeschalteter
Stromversorgung
ausgewechselt worden.
Der Messtaster ist nicht
angeschlossen, oder
Verbindung ist unterbrochen.
Die Spindel des Messtasters hat die
maximale Ansprechgeschwindigkeit
überschritten.
Unregelmäßigkeit im
Ausgangssignal des
Messtasters, oder
Unterbrechung der Verbindung
Der Wert hat fünt Stellen
überschritten.
Eine Initialisierung ist
erforderlich, um die neue
Kombination von
Anzeigeeinheit und
Messtaster zu eichen.
Messtaster ist nicht
angeschlossen,
oder Verbindung
ist unterbrochen.
Geschwindigkeitsüberlauf
Signalstörung oder
Unterbrechung der
Verbindung
Überlauf
Die Initialisierung
ist erforderlich.
Die fünfte Stelle ist F.
Der Wert für die Achse
blinkt.

Table of Contents

Related product manuals