EasyManua.ls Logo

Marstair CC 875 - 542 Series Ducted Condensing Units; Floor Mounting

Marstair CC 875
68 pages
Print Icon
To Next Page IconTo Next Page
To Next Page IconTo Next Page
To Previous Page IconTo Previous Page
To Previous Page IconTo Previous Page
Loading...
18
}
for use on 1Ph systems, particularly
on long pipe runs.
542 SERIES DUCTED CONDENSING UNITS
These units have electronic fan speed control, start delay timer, HP and LP switches and a contactor fitted as
standard; stabilizing brackets are supplied loose .
It is generally preferable to fit the following kits (if applicable), prior to mounting the unit:-
i) PTC kit (Positive Temperature Coefficient resistor)
ii) CSR kit(Capacitor Start Relay).
iii) Isolator.
iv) Overload kit (single phase units only; standard on three phase units).
v) Wall mounting kit.
Consideration should be given to the following, prior to mounting, but should not be fitted until the unit is in position:-
i) Flexible ductwork.
ii) Plenums (return/discharge).
iii) Grilles (return/discharge).
A bag containing 4 suspension brackets, 8 screws and 2 cable glands is supplied taped to the base of the unit next to
the compressor.
MOUNTING
Units are supplied with a polystyrene packing piece supporting the blower assembly: this MUST be removed prior to
commissioning.
Ducted units are designed to be hung on a wall (brackets available as a kit), suspended from a ceiling (installer
supplied fittings), or to stand on a flat surface. Whichever method is used it is essential that the mounting surface is
capable of supporting the unit's weight.
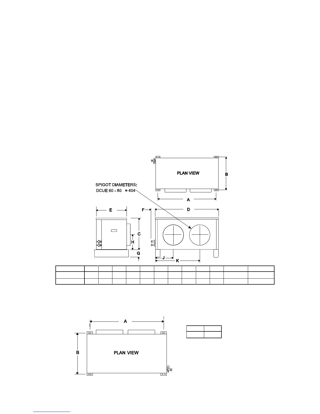
DIMENSIONS
All dimensions mm
Model A B C D E F G H J K Spigot Ø Weight (kg)
DCUE 60
1100 510 560 1174 490 65 65 240 392 865 404 81
DCUE 80
1100 510 560 1174 490 65 65 240 392 865 404 84
FLOOR MOUNTING
Using the appropriate side of the packing carton as a template, (centres marked A), mark out and drill 4 holes to suit
maximum M8 bolts. Secure the unit to the floor. Discard the 4 stabilizing brackets.
A (mm) B (mm)
1100 510
Fig. 1.
Heronhill - for all your Marstair requirements
Tel: 01823 665660
www.heronhill.co.uk
Fax: 01823 665807

Table of Contents

Related product manuals