EasyManua.ls Logo

Marstair CC 875 - Mhpul Wiring Diagrams; 1 Phase MHPUL 80; 3 Phase MHPUL 30 to 90

Marstair CC 875
68 pages
Print Icon
To Next Page IconTo Next Page
To Next Page IconTo Next Page
To Previous Page IconTo Previous Page
To Previous Page IconTo Previous Page
Loading...
34
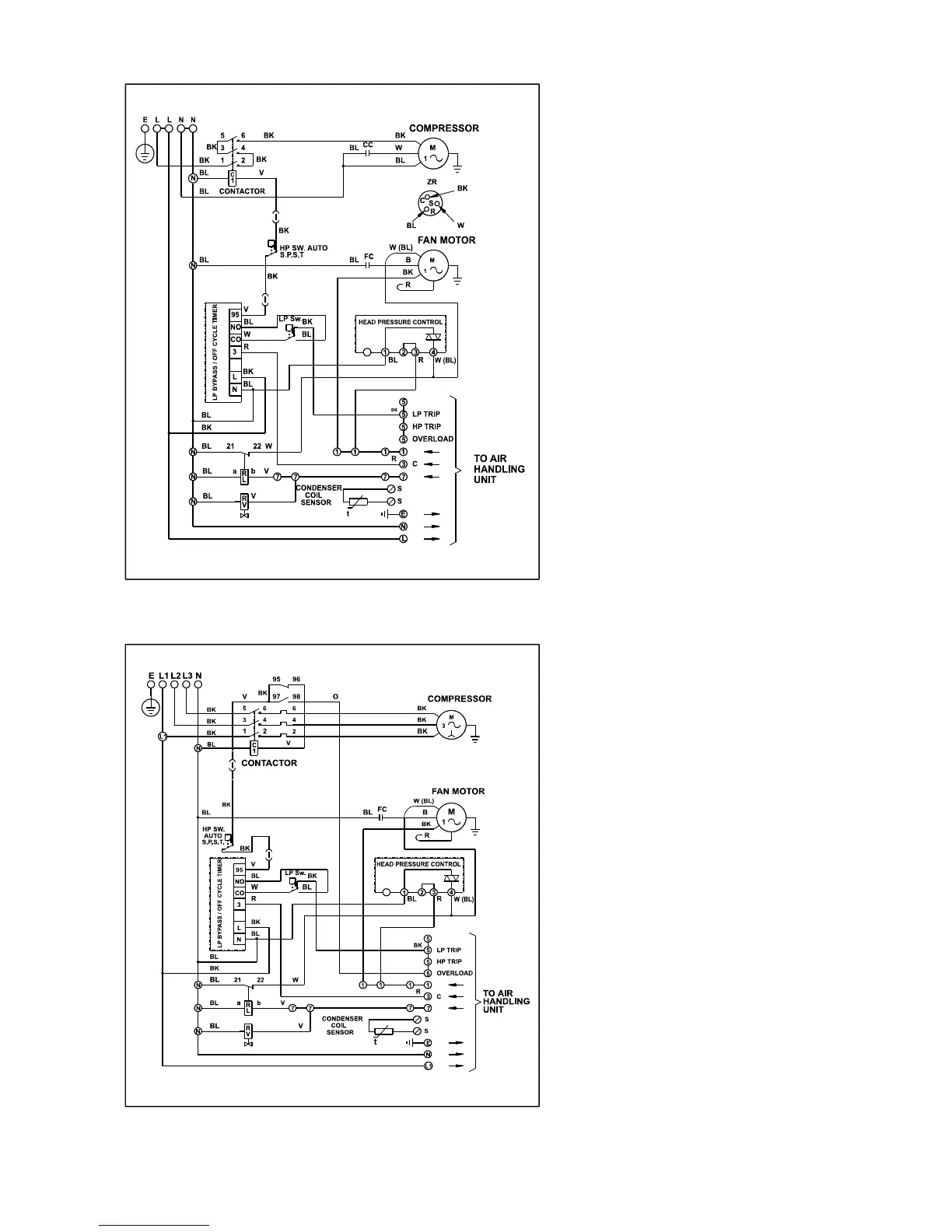
MHPUL WIRING DIAGRAMS
1 Phase MHPUL 80
3 Phase MHPUL 30 to 90
Heronhill - for all your Marstair requirements
Tel: 01823 665660
www.heronhill.co.uk
Fax: 01823 665807

Table of Contents

Related product manuals