EasyManua.ls Logo

Marstair CC 875 - Suspension Mounting; Wall Mounting; Ductwork; Pipe Sizing

Marstair CC 875
68 pages
Print Icon
To Next Page IconTo Next Page
To Next Page IconTo Next Page
To Previous Page IconTo Previous Page
To Previous Page IconTo Previous Page
Loading...
19
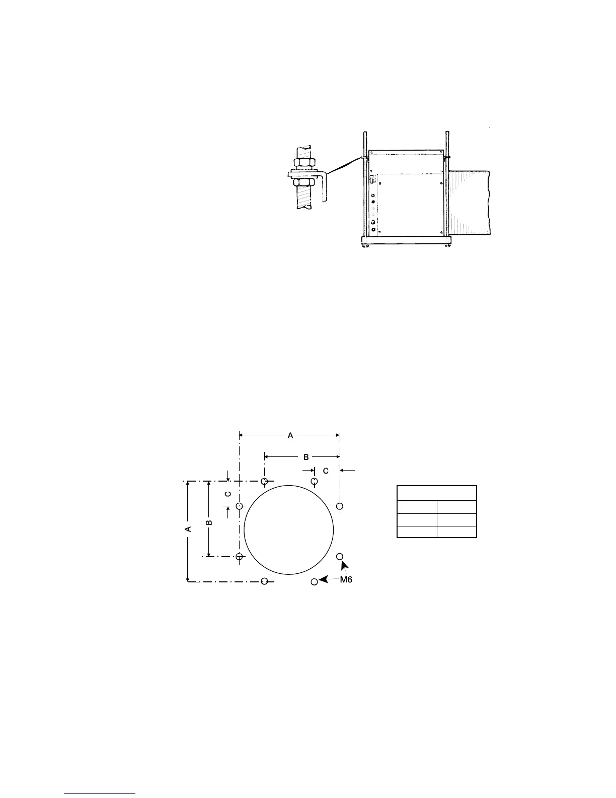
SUSPENSION MOUNTING
The installer must supply 4 x M8 threaded rods with 16 nuts and washers to suit.
IMPORTANT:
The stabilizing brackets provided MUST be used when suspending a unit.
Fit the stabilizing brackets to the top corners of the backpanel and front face using the No. 10 screws provided, (2 per
bracket).
If these brackets are omitted, the unit will be subject to unacceptable movement on compressor start.
Where long drops of M8 rod are used, it is
advisable to incorporate flexible pipes in the
suction and expansion lines.
Using the template printed on the side of the
packing carton, (centres marked A), mark out
the ceiling and drill 4 holes to suit M8 screwed
rod, (see Fig. 1).
Raise the unit to the required height and pass
the screwed rods through the mounting holes in
the units feet and stabilizing brackets.
Secure the unit with a nut and washer on either
side of each stabilizing bracket and two nuts
and washers underneath each foot mounting hole,
(Fig. 2).
WALL MOUNTING
Wall mounting brackets are available as an optional kit (53200407).
DUCTWORK
Each unit is supplied with 404mm Ø (16" Ø) air inlet and discharge spigots.
These may be used for connecting installers ducting or with the optional duct, plenum and grille kits (refer to the kit
instruction for installation). The front face of the units are fitted with M6 rivnuts to accept square ducting (shown
below). Maximum flange width is 25mm and fixing holes should be central within them.
NOTE: It is essential that ducting is adequately insulated to prevent sweating. An insulation thickness of at
least 45mm is recommended.
Dimensions (mm)
A 450
B 350
C 100
PIPE SIZING
1. To maximise performance, pipe runs should be kept as short as possible, avoiding sharp bends. However,
individual pipe runs to a maximum of 80m, including 20m lift, are permissible provided good refrigeration practice
is followed.
Published performance duties are based on 7.5m pipe runs. Correctly sized pipes for each installation, and fitting
the correct expansion orifice (restrictor) will result in no significant loss of capacity on extended pipe runs.
a) Pipe sizes are based on:-
Minimum of 3.8 m/s (750 fpm) suction gas velocity for horizontal or downflow.
Minimum of 7.6 m/s (1500 fpm) suction gas velocity for upflow.
Maximum of 15.2 m/s (3000 fpm) suction gas.
b) Where vertical risers exceed 3m, oil traps must be formed in the pipe. This will help ensure that oil returns
to the compressor. Typically fit an oil trap every 3m with a trap at the bottom of the riser.
2. Add polyolester oil as tabled on page 26; preferably by slowly pumping into the suction side with the unit running,
after charging the system.
3. The maximum pipe lengths to be used for each pipe size and outdoor unit are shown in the table below. Use of
Fig. 2.
Heronhill - for all your Marstair requirements
Tel: 01823 665660
www.heronhill.co.uk
Fax: 01823 665807

Table of Contents

Related product manuals